Kleines grosses Raumwunder
Das Variant 25-135 mit Satteldach zeigt eindrucksvoll, wie sich auch auf kleineren Grundstücken wahre Raumwunder bauen lassen. Dank der durchdachten Planung dieses kompakten Hauses mit Satteldach machen die Häuser richtig Spass.
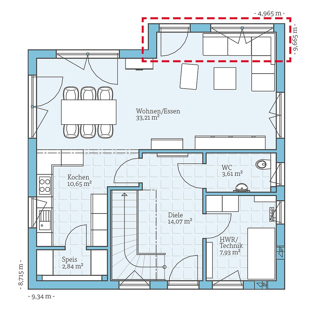
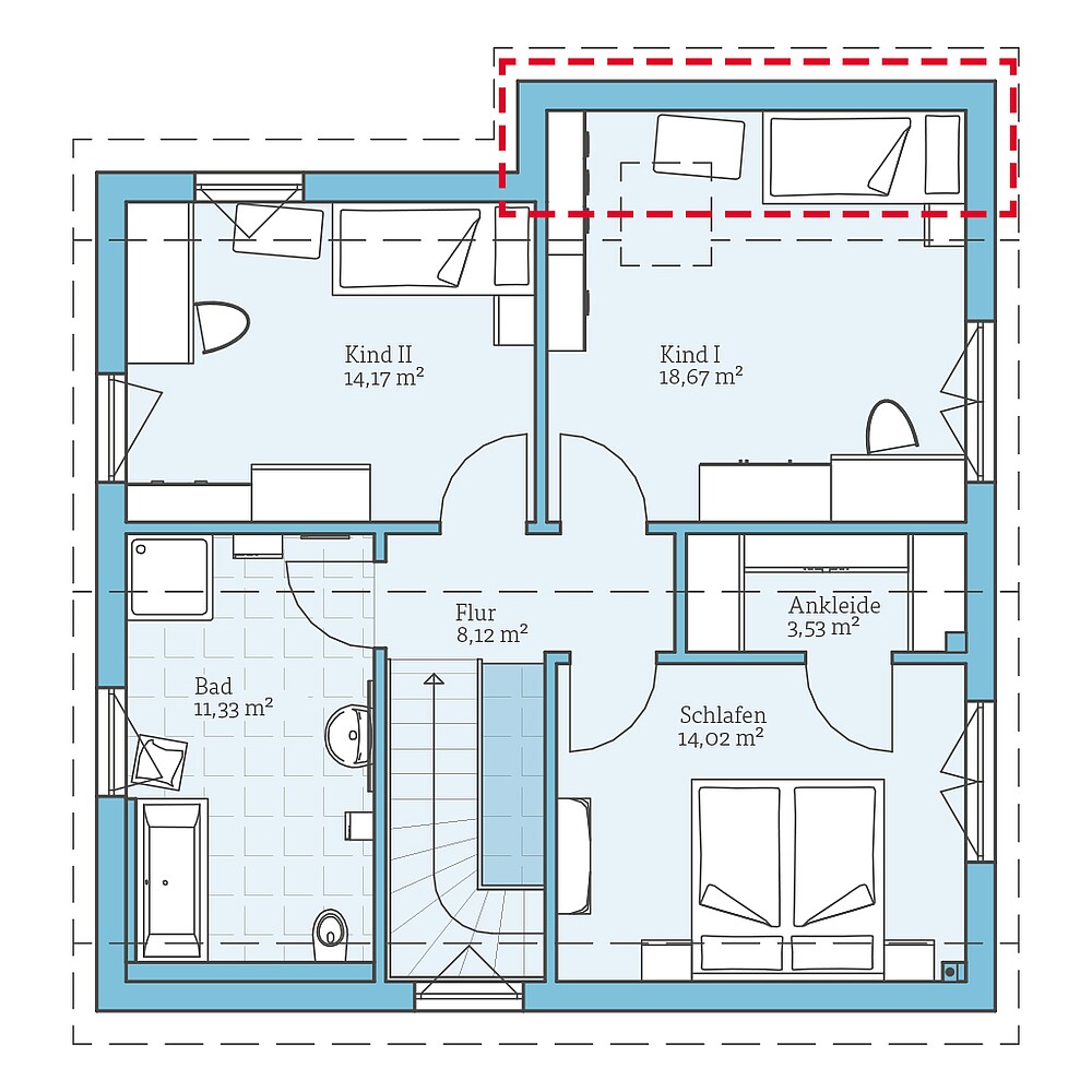
Der grosszügige lichtdurchflutete Wohn-, Ess- und Kochbereich, ein separates Gäste-WC und das grosse Bad im Dachgeschoss bieten einen angenehmen Wohnkomfort und machen das Haus zum WohlfühlZuhause für eine bis zu vierköpfige Familie. Ein Hauswirtschafts-/Heiztechnikraum im Erdgeschoss macht es möglich, diesen Entwurf kostensparend ohne Keller zu bauen.
| Merkmale | |
|---|---|
| Dachform | Satteldach |
| Dachneigung | 25° |
| Kniestock | 200 cm |
| Wohnfläche | 126,19 m² |
| Grundfläche | 135,12 m² |
| Anzahl Geschosse | 1,5 |
Anbau
Möglichkeiten
- Erker
Beispiel
Grundrisse
Bekommen Sie durch die Grundrisse einen Eindruck von diesem Haus. Wir zeigen Ihnen unsere Planungsvorschläge, die natürlich auf Wunsch individuell umgeplant werden können.
Zusätzlich haben wir für dieses Haus interessante Planungsoptionen vorbereitet. Klicken Sie sich durch und sehen Sie selbst, welche Varianten wir uns überlegt haben.












