Kleine Umplanung, grosse Wirkung
Variant 25-183 mit Einliegerwohnung
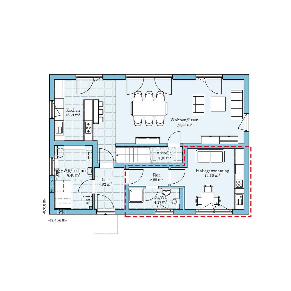
Unser Haus Variant 25-183 bietet so viel Raum, dass sich im Erdgeschoss bequem eine getrennte Einliegerwohnung einplanen lässt.
Da der Basisgrundriss des Hauses bereits über einen grossen Arbeits- und Eingangsbereich verfügt, ist der Aufwand zur Planung mit einer Einliegerwohnung gering.
Beide Wohneinheiten teilen sich die Haustür und den Eingangsbereich, auch zum Haustechnikraum haben beide Wohnparteien Zugang.
| Merkmale | |
|---|---|
| Dachform | Satteldach |
| Dachneigung | 25° |
| Kniestock | 200 cm |
| Wohnfläche | 171,18 m² |
| Grundfläche | 181,25 m² |
| Anzahl Geschosse | 1,5 |
Beispiel
Grundrisse
Bekommen Sie durch die Grundrisse einen Eindruck von diesem Haus. Wir zeigen Ihnen unsere Planungsvorschläge, die natürlich auf Wunsch individuell umgeplant werden können.









