Richtig viel Raum für alles, was das Leben bringt
Wenn das eigene Zuhause wirklich viel Platz bieten soll, sind unsere Häuser aus der Serie Variant 25 immer eine gute Wahl.
In der grössten Planungsvariante, dem Ausstellungshaus in Fellbach Variant 25-198, stehen fast 200 Quadratmeter auf den beiden Ebenen zur Verfügung – für alle, die es grosszügig lieben.
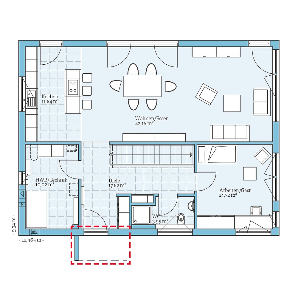
Der offene Koch- und Wohnbereich ist mit seinen insgesamt rund 55 Quadratmetern Mittelpunkt aller täglichen Aktivitäten im Haus und lädt zum gemeinsamen Kochen, Essen oder Feiern ein.
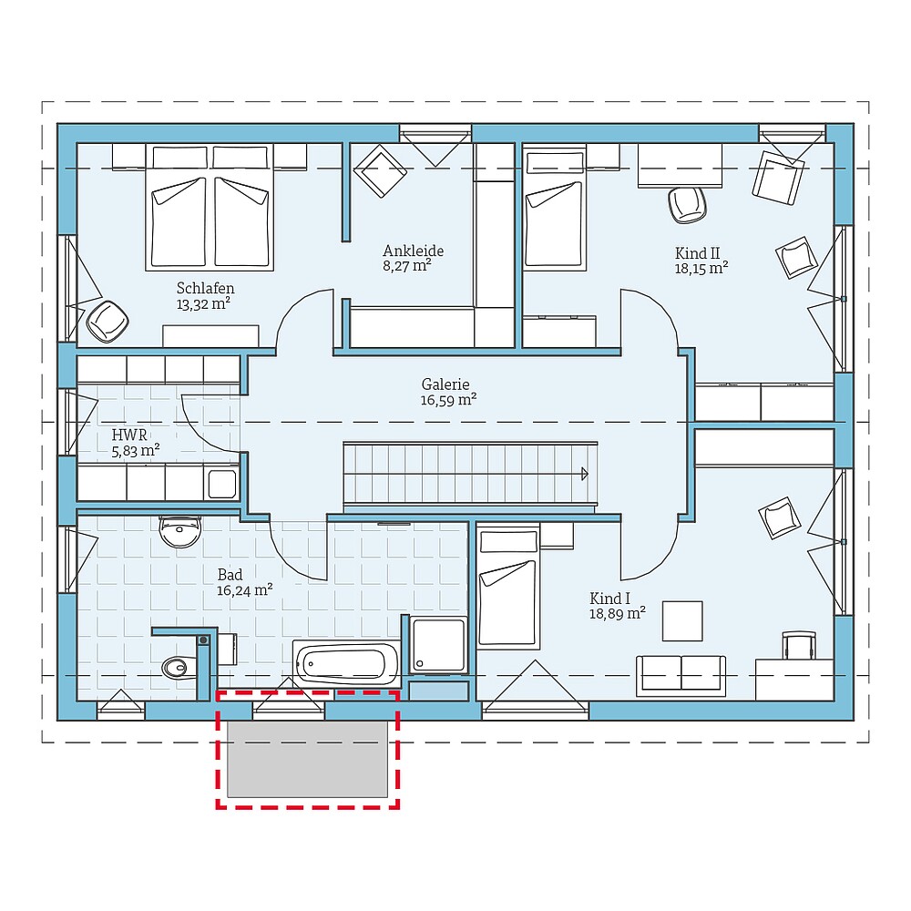
Zu den Schlafräumen im Dachgeschoss gehört ein grosses Wellnessbad mit Badewanne und Dusche. Auch die Kinderzimmer sind so dimensioniert, dass sich der Nachwuchs bis ins Jugendalter wohl im neuen Zuhause fühlen darf.
| Merkmale | |
|---|---|
| Dachform | Satteldach |
| Dachneigung | 25° |
| Kniestock | 200 cm |
| Wohnfläche | 188,36 m² |
| Grundfläche | 198,16 m² |
| Anzahl Geschosse | 1,5 |
Besonderes
& Extras
Dieses Haus live erleben:
Höhenstrasse 21, Haus 30
70736 Fellbach
Telefon 0711-522569
Anbaumöglichkeiten:
- Haustürüberdachung
Beispiel
Grundrisse
Bekommen Sie durch die Grundrisse einen Eindruck von diesem Haus. Wir zeigen Ihnen unsere Planungsvorschläge, die natürlich auf Wunsch individuell umgeplant werden können.
Zusätzlich haben wir für dieses Haus interessante Planungsoptionen vorbereitet. Klicken Sie sich durch und sehen Sie selbst, welche Varianten wir uns überlegt haben.















