Modernes Wohnen auf kleinen Grundstücken
Bei manchen Baugrundstücken kann es von Vorteil sein, den Hauseingang nicht wie üblich an der Traufseite des Hauses, sondern wie beim Hanse Haus Doppelhaus 45-123 an der Giebelseite zu platzieren. So können Zufahrten, die Platzierung und die Ausrichtung des Hauses je nach Lage des Grundstücks unter Umständen besser geplant werden.
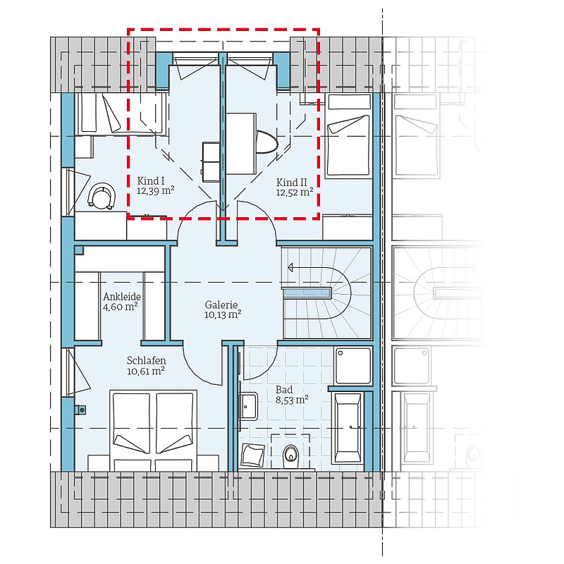
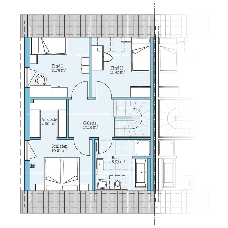
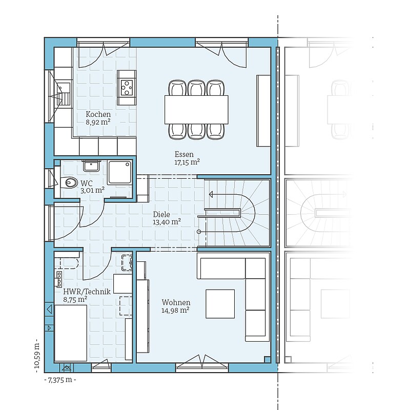
Der Fertighaus Entwurf Doppelhaus 45-123 bietet im Erdgeschoss einen grossen offenen Koch- und Essbereich, der als kommunikative Wohnküche gestaltet ist und den Mittelpunkt des Familienlebens bildet. Ein separates Wohnzimmer, ein Hauswirtschafts- und Technikraum sowie das Gäste-WC runden das Raumangebot im Erdgeschoss ab. Im Dachgeschoss stehen zwei Kinderzimmer, das Elternschlafzimmer mit Ankleidezimmer und ein Familienbad zur Verfügung.
Die insgesamt 123 m² dieses Doppelhauses können mit dem optionalen Zwerchgiebel noch erweitert werden.
| Merkmale | |
|---|---|
| Dachform | Satteldach |
| Dachneigung | 45° |
| Kniestock | 50 cm |
| Wohnfläche je Einheit | 109,30 m² |
| Grundfläche je Einheit | 123,32 m² |
| Anzahl Geschosse | 1,5 |
Anbau
Möglichkeiten
- Zwerchgiebel
Beispiel
Grundrisse
Bekommen Sie durch die Grundrisse einen Eindruck von diesem Haus. Wir zeigen Ihnen unsere Planungsvorschläge, die natürlich auf Wunsch individuell umgeplant werden können.
Zusätzlich haben wir für dieses Haus interessante Planungsoptionen vorbereitet. Klicken Sie sich durch und sehen Sie selbst, welche Varianten wir uns überlegt haben.










