Genügend Privatsphäre für alle
Bei diesem Hausentwurf ist die rund 44 m² grosse Einliegerwohnung in den Baukörper integriert. Dennoch ist aufgrund der separaten Hauseingänge für genügend Privatsphäre gesorgt: Der „Haupteingang“ befindet sich an der Traufseite, die Bewohner der Einliegerwohnung betreten das Haus an der Ortgang-Seite.
Das Erdgeschoss der Hauptwohnung überzeugt mit einem hellen Wohn-, Ess- und Kochbereich.
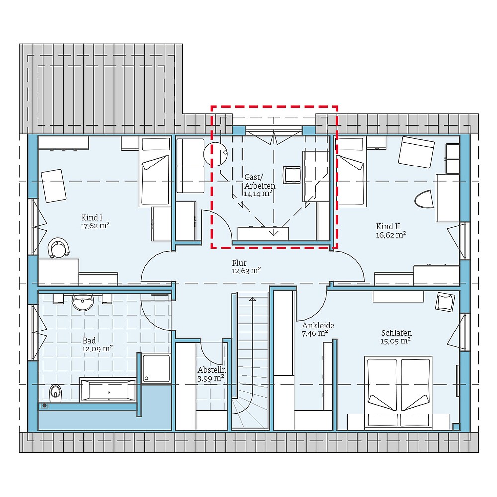
Im Dachgeschoss stehen neben dem Elternschlafzimmer mit separater Ankleide, zwei Kinderzimmern und Familienbad ein Gästeund Arbeitszimmer sowie ein Abstellraum zur Verfügung.
| Merkmale | |
|---|---|
| Dachform | Satteldach |
| Dachneigung | 35° |
| Kniestock | 120 |
| Grundfläche Einliegerwohnung | 44,39 m² |
| Grundfläche Hauptwohnung | 165,03 m² |
| Anzahl Geschosse | 1,5 |
Anbau
Möglichkeiten
- Erker mit Balkon
Beispiel
Grundrisse
Bekommen Sie durch die Grundrisse einen Eindruck von diesem Haus. Wir zeigen Ihnen unsere Planungs-Vorschläge, die natürlich auf Wunsch individuell umgeplant werden können.











