Gemeinsam im Generationenhaus
Der Hanse Haus Fertighaus Entwurf Duo 211 wurde als Generationenhaus geplant und ist ein wahres Raumwunder.
Das Haus bietet nicht nur grosszügigen Platz für eine Familie mit bis zu drei Kindern, sondern zusätzlich noch eine separate Einliegerwohnung, die beispielsweise von den Grosseltern bewohnt werden kann.
Durch die ebenerdige Anordnung der Räume in der Einliegerwohnung ist diese perfekt auf die Bedürfnisse im Alter zugeschnitten.
| Merkmale | |
|---|---|
| Dachform | Satteldach, Pultdach |
| Dachneigung | Satteldach 25° / Pultdach 5° |
| Wohnfläche Einliegerwohnung | 53,10 m² |
| Wohnfläche Hauptwohnung | 143,52 m² |
| Gemeinsam genutzte Fläche | 8,93 m² |
| Grundfläche Einliegerwohnung | 53,10 m² |
| Grundfläche Hauptwohnung | 149,07 m² |
| Anzahl Geschosse | 2 |
Beispiel
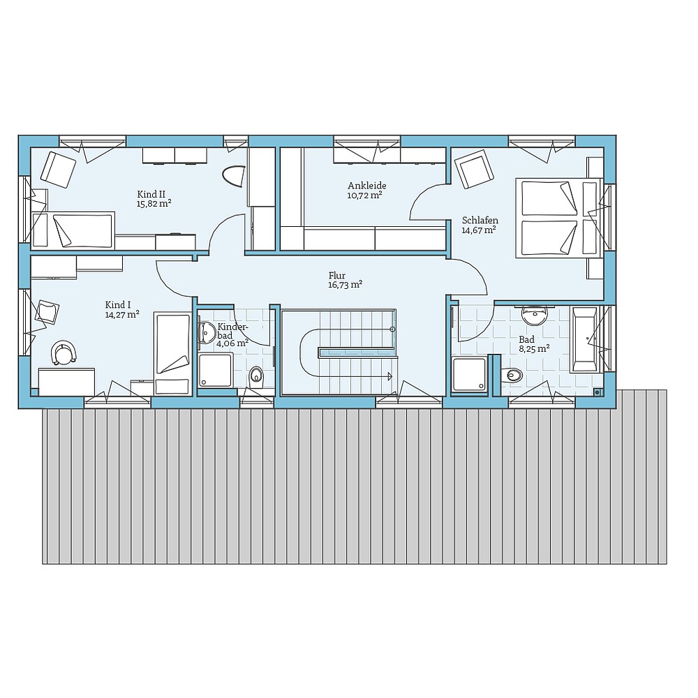
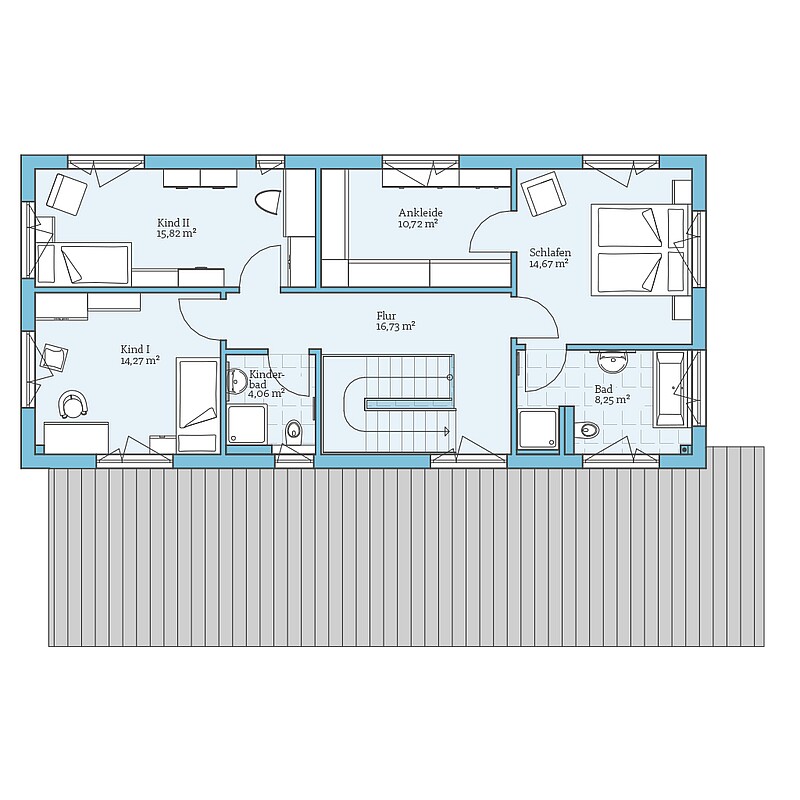
Grundrisse
Bekommen Sie durch die Grundrisse einen Eindruck von diesem Haus. Wir zeigen Ihnen unsere Planungs-Vorschläge, die natürlich auf Wunsch individuell umgeplant werden können.










