La maison générationnelle
Ce qui attire particulièrement le regard dans ce modèle de maison Duo, c'est l'extension sur un niveau avec toit en appentis située à l'entrée de maison. Elle permet de protéger les deux portes d'entrée du vent et des intempéries. Le modèle Duo 211 est impressionnant par son espace. La maison offre non seulement un endroit spacieux aux occupants du logement principal mais aussi un appartement indépendant qui peut être occupé par les grands-parents par exemple. Grace à une disposition des pièces sur un niveau, l'appartement indépendant est parfaitement adapté aux besoins des personnes âgées.
| Caractéristiques | |
|---|---|
| Type de toit | Toit en bâtière, Toit à un pan |
| Pente du toit | Satteldach 25° / Pultdach 5° |
| Surface habitable Appartement indépendant | 52,45 m² |
| Surface habitable logement principal | 151,49 m² |
| Surface au sol Appartement indépendant | 52,45 m² |
| Surface au sol logement principal | 159,16 m² |
| Nombre d'étages | 2 |
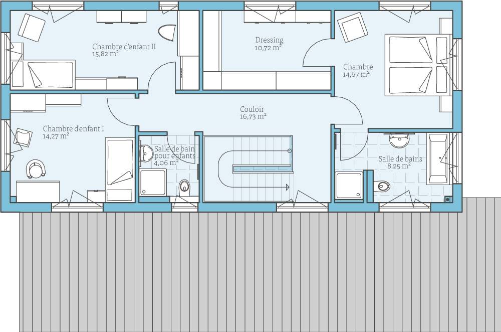
Exemples de
plans d'étage
Faites-vous une idée de cette maison à travers les plans d'étage. Nous vous montrerons nos suggestions de planification, qui peuvent bien sûr être modifiées individuellement sur demande.

Maisons de la même série






