La casa generazionale
Duo 211
L'estensione del tetto a una sola falda sul lato dell'ingresso di questo progetto Duo è visivamente rilevante. Questo protegge entrambe le porte anteriori dal vento e dalle intemperie. Il design Duo 211 è un vero miracolo di spazio. La casa offre non solo agli abitanti della casa principale uno spazio generoso, ma anche un'altra dependance separata, che può essere abitata per esempio dai nonni. La disposizione a livello del suolo dei locali della dependance la rende perfettamente adatta alle esigenze delle persone anziane.
| Caratteristiche | |
|---|---|
| Forma tetto | Tetto a due falde, Tetto semplice a falda unica |
| Inclinazione del tetto | 25° / 5° |
| Superficie abitativa suite secondaria | 52,45 m² |
| Superficie abitativa appartamento principale | 151,49 m² |
| Superficie suite secondaria | 52,45 m² |
| Superficie appartamento principale | 159,16 m² |
| Numero piani | 2 |
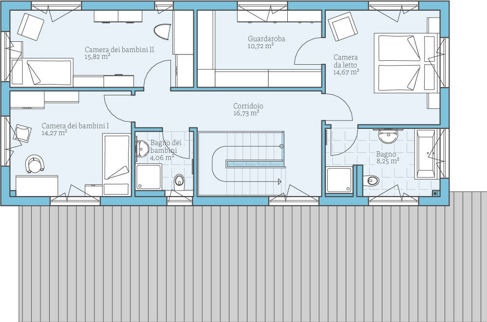
Esempi di
planimetrie
Fatevi un'idea di questa casa con gli esempi di planimetrie. Vi mostriamo le nostre proposte di progettazione, che naturalmente possono essere modificate individualmente su richiesta.

Case della stessa serie
Mostra serie casa






