Un colpo d'occhio dall'interno e dall'esterno
In questo progetto, l'appartamento principale si trova in una villa a due piani con un tetto a padiglione. L'appartamento annesso è alloggiato in un'estensione separata a un piano con un tetto a 1 falda. Dal momento che l'appartamento annesso è indipendente in termini di pianificazione, può essere facilmente adattato ad altre situazioni di proprietà e riprogettato di conseguenza. L'appartamento principale dispone di poco meno di 90 m² di spazio abitativo al piano terra. La zona pranzo può essere ampliata con un piccolo annesso: questa opzione progettuale fa sembrare la zona pranzo ancora più ariosa e vivacizza la casa dall'esterno.
| Caratteristiche | |
|---|---|
| Forma tetto | Tetto a padiglione, Tetto semplice a falda unica |
| Inclinazione del tetto | 25°/ 5° |
| Superficie abitativa suite secondaria | 48,19 m² |
| Superficie abitativa appartamento principale | 169,38 m² |
| Superficie suite secondaria | 48,19 m² |
| Superficie appartamento principale | 177,06 m² |
| Numero piani | 2 |
Opzione di
pianificazione
- Un'estensione del tetto piatto a un piano consente di avere più spazio per il tavolo da pranzo di circa 4,5 m² e una migliore vista all'esterno.
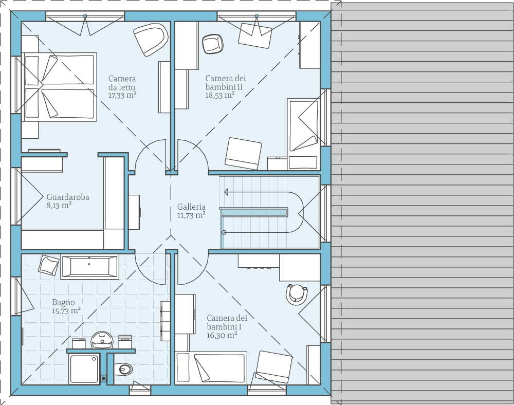
Esempi di
planimetrie
Fatevi un'idea di questa casa con gli esempi di planimetrie. Vi mostriamo le nostre proposte di progettazione, che naturalmente possono essere modificate individualmente su richiesta.

Case della stessa serie






