Ein Hingucker von innen und von aussen
Bei diesem Entwurf befindet sich die Hauptwohnung in einer zweigeschossigen Villa mit einem Walmdach. Die Einliegerwohnung ist in einem separaten, eingeschossigen Anbau mit Pultdach untergebracht. Da die Einliegerwohnung planungstechnisch für sich steht, kann sie auch leicht an andere Grundstückssituationen angepasst und dementsprechend umgeplant werden.
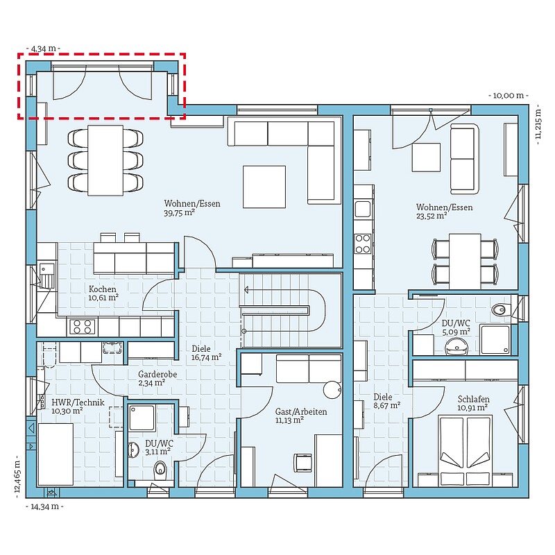
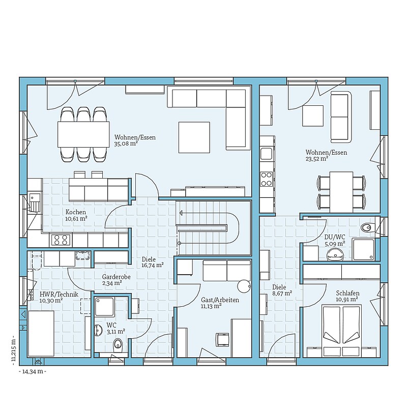
In der Hauptwohnung ist im Erdgeschoss Platz für knapp 90 m² Wohnfläche. Erweitert werden kann der Essbereich noch um einen kleinen Anbau: Diese Planungsoption lässt den Essbereich noch luftiger wirken und peppt das Haus von aussen auf.
| Merkmale | |
|---|---|
| Dachform | Walmdach, Pultdach |
| Dachneigung | Walmdach 25°/ Pultdach 5° |
| Wohnfläche Einliegerwohnung | 47,75 m² |
| Wohnfläche Hauptwohnung | 158,80 m² |
| Grundfläche Einliegerwohnung | 47,75 m² |
| Grundfläche Hauptwohnung | 181,08 m² |
| Anzahl Geschosse | 2 |
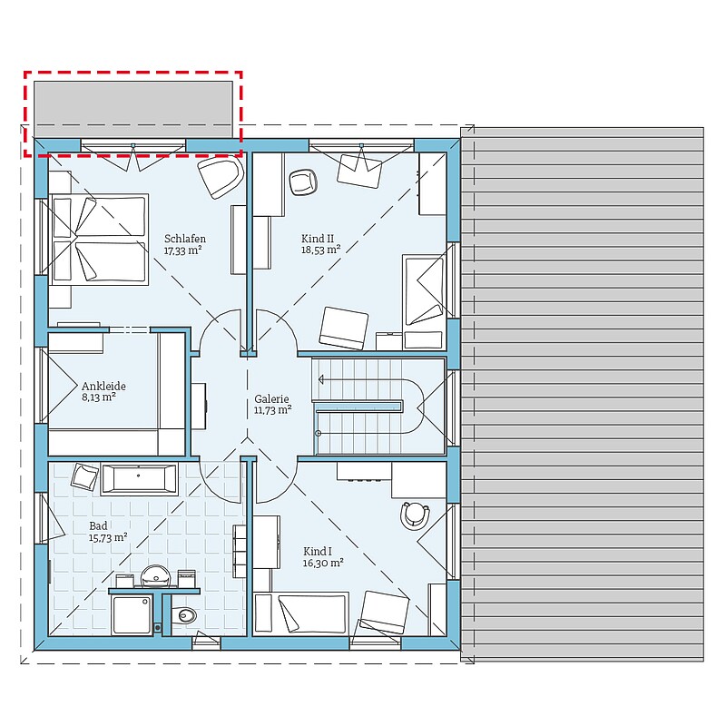
Anbau
Möglichkeiten
- Flachdachanbau
Beispiel
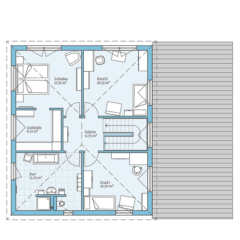
Grundrisse
Bekommen Sie durch die Grundrisse einen Eindruck von diesem Haus. Wir zeigen Ihnen unsere Planungs-Vorschläge, die natürlich auf Wunsch individuell umgeplant werden können.
Zusätzlich haben wir für dieses Haus interessante Planungsoptionen vorbereitet. Klicken Sie sich durch und sehen Sie selbst, welche Varianten wir uns überlegt haben.











