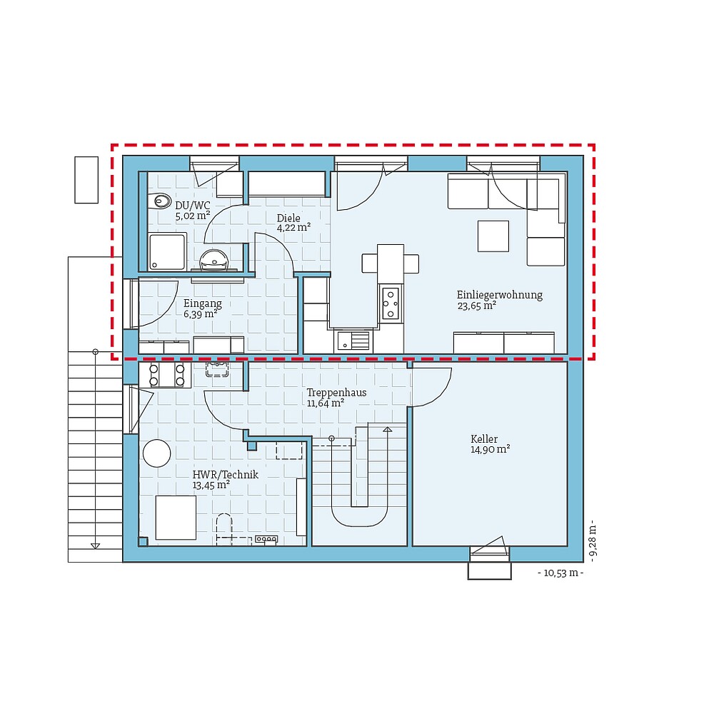
Bauen in Hanglage: Eigene Eingänge für beide Wohneinheiten
Wer sein Zuhause mit einer zusätzlichen Einliegerwohnung planen möchte und dennoch viel Wert auf Privatsphäre legt, für den ist diese Planungsalternative des Variant 25-166 optimal geeignet.
Separate Hauseingänge im Erd- und Untergeschoss schaffen eine klare Trennung der beiden Wohneinheiten, und auch die Terrassen der Wohnungen können an unterschiedlichen Seiten des Hauses geplant werden.
Die 40 m² grosse Einliegerwohnung lohnt sich gleich doppelt: Dank der zusätzlichen Wohnfläche im Haus steigert sie den Wert des Gebäudes, und vermietet leistet sie einen wertvollen Beitrag zur Finanzierung des Bauvorhabens.
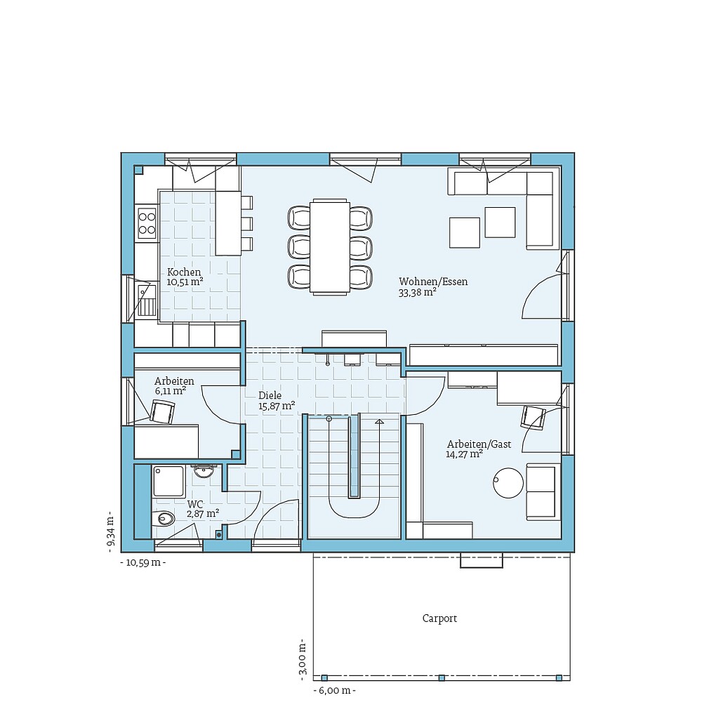
Für dieses Haus gibt es eine weitere Planungsvariante mit einem gemeinsamen Eingang.
| Merkmale | |
|---|---|
| Dachform | Satteldach |
| Dachneigung | 25° |
| Kniestock | 200 cm |
| Wohnfläche | 198,60 m² |
| Grundfläche | 244,28 m² |
| Anzahl Geschosse | 1,5 |
Beispiel
Grundrisse
Bekommen Sie durch die Grundrisse einen Eindruck von diesem Haus. Wir zeigen Ihnen unsere Planungsvorschläge, die natürlich auf Wunsch individuell umgeplant werden können.










