Appartement indépendant au sous-sol: Maison à flanc de colline avec aménagements côté vallée
Ce modèle de maison Variant 25-166 convient parfaitement aux personnes qui souhaitent aménager leur maison avec un appartement indépendant tout en préservant leur intimité. Les entrées séparées du rez-de-chaussée et du sous-sol assurent une séparation nette des deux unités d'habitation, et les terrasses des appartements peuvent également être aménagées sur différents côtés de la maison. L'appartement indépendant de 39 m² est doublement avantageux: grâce à la surface habitable supplémentaire apportée à la maison, il augmente la valeur globale du bien immobilier et, lorsqu'il est loué, il permet une contribution précieuse au financement du projet de construction.
| Caractéristiques | |
|---|---|
| Type de toit | Toit en bâtière |
| Pente du toit | 25° |
| Échine | 200 cm |
| Surface habitable | 211,78 m² |
| Surface habitable Appartement indépendant | 39,28 m² |
| Surface habitable logement principal | 165,25 m² |
| Surface au sol | 244,62 m² |
| Nombre d'étages | 1,5 |
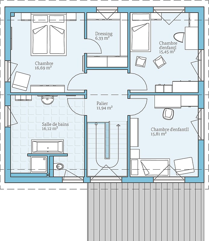
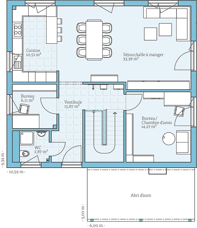
Exemples de
plans d'étage
Faites-vous une idée de cette maison à travers les plans d'étage. Nous vous montrerons nos suggestions de planification, qui peuvent bien sûr être modifiées individuellement sur demande.

Maisons de la même série









