Flexibel planbares Fertighaus mit Satteldach
Der Clou beim Grundrissentwurf des Variant 35-160 ist seine grosse Flexibilität.
Für das Erdgeschoss stehen gleich zwei Planungsvarianten zur Verfügung:
- die Grundversion mit einem kleinen Arbeitszimmer und einem kombinierten Hauswirtschafts-/Technikraum
- sowie eine optionale Planungsversion, in der das Haus mit einer Garage und einem Haustechnikanbau erweitert wird.
Hier sind dann im Erdgeschoss ein vergrösserter Arbeitsbereich, ein kleiner Hauswirtschaftsraum als Schleuse zum überdachten Nebeneingang und eine grosszügigere Küche eingeplant.
Die zweite Planungsoption für dieses Fertighaus mit Satteldach kann als Musterhaus am Hanse Haus Firmensitz in Oberleichtersbach besichtigt werden.
| Merkmale | |
|---|---|
| Dachform | Satteldach |
| Dachneigung | 35° |
| Kniestock | 120 cm |
| Wohnfläche | 143,92 m² |
| Grundfläche | 160,25 m² |
| Anzahl Geschosse | 1,5 |
Besonderheiten
& Extras
Dieses Haus live erleben:
Buchstrasse 3
97789 Oberleichtersbach
Telefon 09741-808-0
Entdecken Sie den besonderen Grundriss dieses Einfamilienhauses bereits vorab in unserem Video.
Anbaumöglichkeiten:
- Wintergarten
- Garage und ausgelagerter Haustechnikraum
- Arbeitszimmer
Aktion
Dieses Hanse-Haus ist eines unserer aktuellen Aktionshäuser. Wenn Sie sich für die Preise interessieren, dann fordern Sie doch unsere Aktionsbroschüre an.
Beispiel
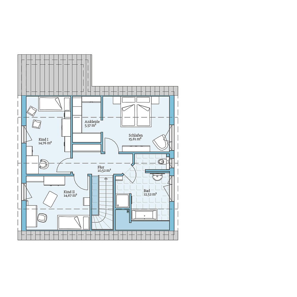
Grundrisse
Bekommen Sie durch die Grundrisse einen Eindruck von diesem Haus. Wir zeigen Ihnen unsere Planungsvorschläge, die natürlich auf Wunsch individuell umgeplant werden können.
Zusätzlich haben wir für dieses Haus interessante Planungsoptionen vorbereitet. Klicken Sie sich durch und sehen Sie selbst, welche Varianten wir uns überlegt haben.

















