Une planification flexible
Le point fort de la conception du plan d'étage du modèle Variant 35-160 est sa grande flexibilité. Deux variantes de conception sont disponibles pour le rez-dechaussée: la version de base avec un petit bureau et une buanderie/local technique combinés, et une version d'aménagement optionnelle dans laquelle la maison est agrandie avec un garage et un local technique. À cet endroit, un bureau/chambre d'amis plus grand, une petite buanderie servant de sas à l'entrée latérale couverte et une cuisine plus spacieuse, sont prévus au rez-dechaussée.
| Caractéristiques | |
|---|---|
| Type de toit | Toit en bâtière |
| Pente du toit | 35° |
| Échine | 120 cm |
| Surface habitable | 143,89 m² |
| Surface au sol | 160,22 m² |
| Nombre d'étages | 1,5 |
Besonderheiten
& Extras
Vivre cette maison en direct:
Buchstraße 3
97789 Oberleichtersbach
Téléphone 09741-808-0
Option de plans:
Vous pouvez agrandir ce modèle de plan avec de multiples extensions.
- Ici, la maison a été agrandie avec un garage et un local technique. Vous pouvez visualiser ce modèle de conception de maison grâce à la maison témoin qui se situe au siège de Hanse Haus à Oberleichtersbach. Le fait de délocaliser le local technique crée de l'espace dans la maison pour un bureau plus grand. Le garage est directement rattaché au local technique. Le toit devant le local technique et la porte d'entrée latérale crée une « cour » couverte.
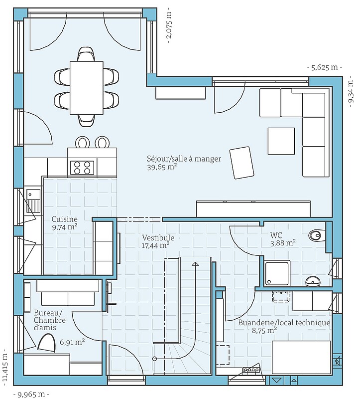
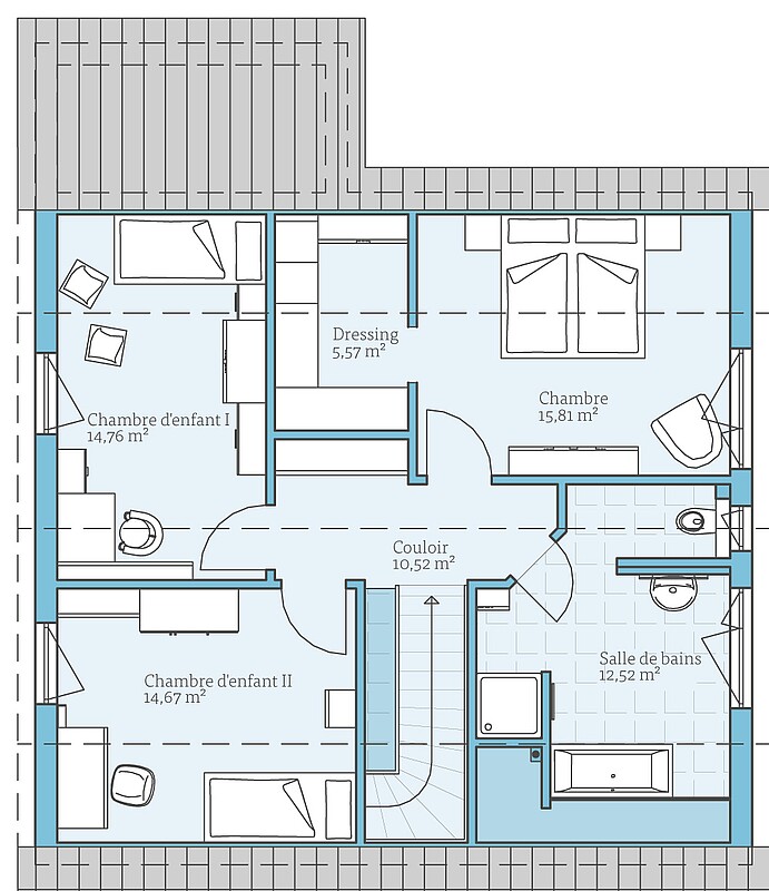
Exemples de
plans d'étage
Faites-vous une idée de cette maison à travers les plans d'étage. Nous vous montrerons nos suggestions de planification, qui peuvent bien sûr être modifiées individuellement sur demande.

Maisons de la même série














