Vivre confortablement sous le toit en bâtière
L'espace lumineux de la salle à manger du modèle Variant 35-173 est le lieu central de la vie quotidienne familiale. Il relie en diagonale le salon à la cuisine ouverte. Cette dernière dispose d'un grand espace de travail pour cuisiner ensemble et d'un gardemanger qui offre un grand espace de stockage et qui vient remplacer des armoires de rangement en hauteur. Les toilettes pour invités, offrent suffisamment de place pour une douche ce qui est pratique pour la chambre d'amis/le bureau attenant.
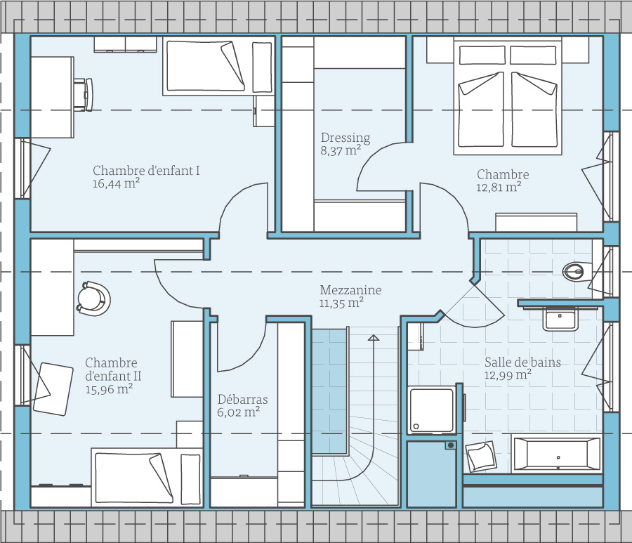
À l'étage sous les combles, les deux chambres d'enfants, la chambre principale et la salle de bain se situent sur le côté des pignons afin de profiter de l'abondante lumière entrante à cet endroit. L'espace sous les pentes du toit est utilisé de manière optimale pour l'escalier et le dressing adjacent à la chambre. Il y a également suffisamment d'espace pour une pièce de rangement supplémentaire pouvant servir de buanderie. Dans la salle de bain familiale, les toilettes sont cachées derrière un mur et la baignoire est placée sous le toit incliné afin de gagner de l'espace.
| Caractéristiques | |
|---|---|
| Type de toit | Toit en bâtière |
| Pente du toit | 35° |
| Échine | 120 cm |
| Surface habitable | 155,04 m² |
| Surface au sol | 172,84 m² |
| Nombre d'étages | 1,5 |
Particularités
& extras
Vivre cette maison en direct:
Höhenstraße 21, Haus 26
70736 Fellbach
Telefon 0711 4703538
Option de plans:
Vous pouvez agrandir ce modèle de plan avec par exemple les éléments de construction suivants :
- Le coin salon extérieur d'environ 12 m² offre la possibilité d'un coin repas couvert dans le jardin.
- Le carport situé devant la porte d'entrée sert également d'auvent pour cette dernière.
Exemples de
plans d'étage
Faites-vous une idée de cette maison à travers les plans d'étage. Nous vous montrerons nos suggestions de planification, qui peuvent bien sûr être modifiées individuellement sur demande.

Maisons de la même série
















