Une planification individuelle pour chaque type de terrain
Vous pouvez très facilement reproduire les plans de votre maison afin de les adapter à la disposition de votre terrain et de les orienter de manière optimale en fonction des points cardinaux. Un exemple: notre maison modèle Variant 35-163, qui peut être visitée dans le parc Unger à Dresde, est une réplique de notre maison modèle Variant 35-161 à Mannheim.
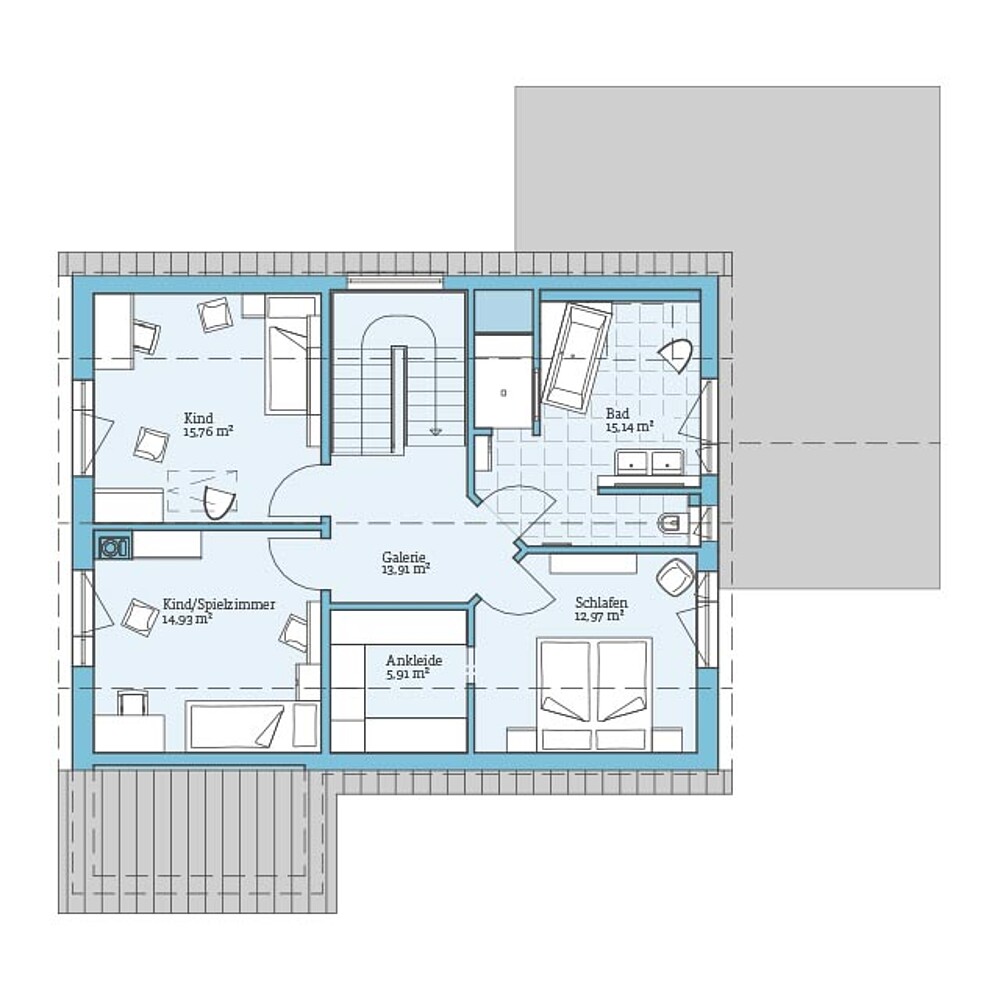
Le cœur de la maison Variant 35-163 est l'espace ouvert du salon, de la salle à manger et de la cuisine. Dans notre maison témoin de Dresde, un oriel vitré crée un espace supplémentaire et permet de faire entrer beaucoup de lumière. Avec une hauteur sous coude de 140 cm, la maison dispose d'un étage supérieur spacieux qui, outre une chambre à coucher avec dressing attenant et deux chambres d'enfants, peut également accueillir une salle de bains spacieuse destinée à la détente.
| Caractéristiques | |
|---|---|
| Type de toit | Toit en bâtière |
| Pente du toit | 35° |
| Échine | 140 cm |
| Surface habitable | 173,92 m² |
| Surface au sol | 192,40 m² |
| Nombre d'étages | 1,5 |
Particularités
& extras
Vivre cette maison en direct:
Ungar-Park Dresden
Zur Kuhbrücke 11
01458 Ottendorf-Okrilla
Téléphone: 03520 5704603
Option de plans:
Vous pouvez agrandir ce modèle de plan avec par exemple les éléments de construction suivants :
- L'extension du bureau avant, avec le local technique attenant permet de travailler à domicile et de créer un espace d'entrée plus spacieux.
- Auvent de la porte d'entrée (possible sous cette forme uniquement dans le cadre de l'extension du bureau)
- La véranda augmente la surface habitable d'environ 7,5 m
Exemples de
plans d'étage
Faites-vous une idée de cette maison à travers les plans d'étage. Nous vous montrerons nos suggestions de planification, qui peuvent bien sûr être modifiées individuellement sur demande.

Maisons de la même série














