Vivere comodamente sotto un tetto a 2 falde
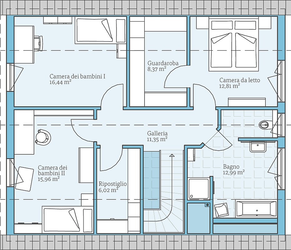
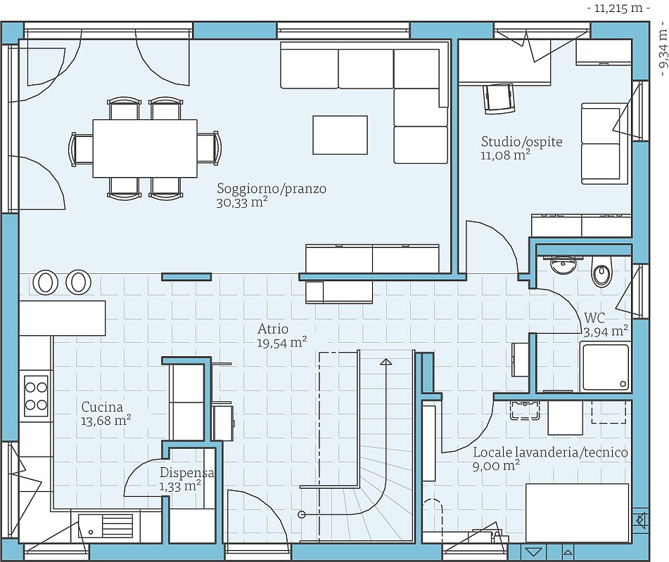
La luminosa zona pranzo della casa Variant 35-173 è il centro della vita quotidiana della famiglia. Collega la zona giorno con la cucina aperta. La spaziosa cucina invita a lavorare e cucinare insieme, una dispensa offre ampio spazio per lo stoccaggio e sostituisce gli armadietti alti. Nel bagno degli ospiti, adiacente alla camera degli ospiti/studio, c'è spazio per una doccia. Nella mansarda, le due camere da letto dei bambini, la camera da letto principale e il bagno sono situati sul lato frontone, essendo questo lato molto luminoso. Lo spazio sotto il tetto spiovente è utilizzato in modo ottimale per la scala e lo spogliatoio adiacente alla camera da letto. C'è anche abbastanza spazio per un ulteriore ripostiglio, che può essere utilizzato come lavanderia. Nel bagno di famiglia, la toilette è nascosta dietro un muro e la vasca da bagno è posta sotto il tetto spiovente per risparmiare spazio.
| Caratteristiche | |
|---|---|
| Forma tetto | Tetto a due falde |
| Inclinazione del tetto | 35° |
| Altezza di gronda | 120 cm |
| Superficie abitativa | 155,04 m² |
| Superficie | 172,84 m² |
| Numero piani | 1,5 |
Peculiarità
della casa
Scopri questa casa dal vivo:
Höhenstraße 21, Casa 26
70736 Fellbach
Tel.: 0711 4703538
Opzione di pianificazione:
È possibile ampliare questo progetto, ad esempio, con le seguenti estensioni:
- L'area a sedere esterna di circa 12 m² permette di avere una zona pranzo riparata in giardino.
- La pensilina di fronte alla porta d'ingresso serve anche come tettoia per la porta d'ingresso.
Esempi di
planimetrie
Fatevi un'idea di questa casa con gli esempi di planimetrie. Vi mostriamo le nostre proposte di progettazione, che naturalmente possono essere modificate individualmente su richiesta.

Case della stessa serie
















