Besuchen Sie uns im Musterhaus Suhr in der Home Expo
Hanse Haus in Suhr
Sie möchten das Projekt Hausbau in Angriff nehmen und mehr über Hanse Haus als Baupartner erfahren? Unser Musterhaus in Suhr bietet Ihnen die Gelegenheit, ein modernes Einfamilienhaus mit Flachdach und toller Wohnatmosphäre zu besichtigen: den Hausentwurf Cubus 162. Vereinbaren Sie ein kostenloses, unverbindliches Beratungsgespräch oder schauen Sie sich ganz in Ruhe um und stellen uns Ihre Fragen. Wir freuen uns auf Sie!


Termine in der Nähe von Suhr

Flachdachhaus als Musterhaus in Suhr
Klare Linien und eine sachlich gegliederte Architektur bestimmen den Charakter unseres Musterhauses in Suhr in der Schweiz. Im Inneren entstehen so viel Freiraum und helle Räume auf zwei Vollgeschossen.
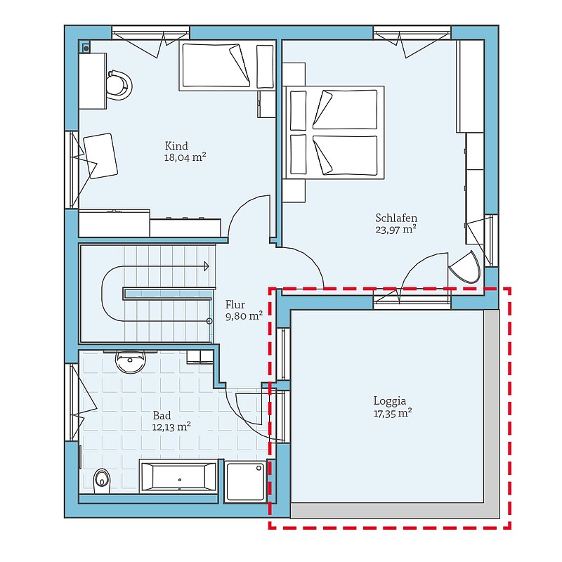
Das moderne Musterhaus mit Flachdach zeigt, wie sich ein ganzheitlich barrierefreies Wohnkonzept umsetzen lässt. Der offene, großzügige Grundriss mit 184 m² Wohnfläche bietet beste Voraussetzungen dafür. Das Highlight des Musterhauses ist die Loggia im Obergeschoss, die das Haus um einen geschützten Sitzplatz im Freien erweitert.
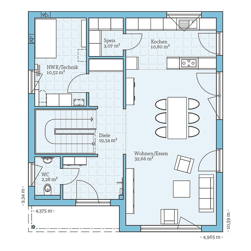
Erdgeschoss
- Offener Wohn-, Ess- und Kochbereich mit Speisekammer
- Gäste-WC
- Geräumige Diele
- Hauswirtschafts- und Technikraum
Obergeschoss
- Loggia
- Kinderzimmer
- Elternschlafzimmer
- Familienbad mit Badewanne und Dusche
Ihr Besuch in unserem Musterhaus in Suhr
Die Home Expo Suhr ist die einzige permanente Musterhausausstellung in der Schweiz. Dort haben Sie die Möglichkeit, sieben fertig eingerichtete und technisch komplett ausgestattete Einfamilienhäuser von unterschiedlichen Anbietern zu besichtigen. Lassen Sie die Häuser bei einem Rundgang auf sich wirken und sammeln Sie Ideen und Inspiration für Ihr eigenes Traumhaus.
- Eintrittspreis: Eintritt frei
- Adresse: Bernstrasse Ost 46, 5034 Suhr, Schweiz
- Öffnungszeiten Musterhauspark: Freitag bis Sonntag, jeweils 11 bis 18 Uhr (Termine außerhalb der Öffnungszeiten möglich)
- Anzahl der Musterhäuser: 6
Warum sich ein Besuch im Musterhaus in Suhr lohnt
Der Besuch im Musterhaus Suhr kann einen wichtigen Beitrag zur Entscheidung für einen Fertighausanbieter, einen Haustyp oder einen Architekturstil leisten.
Sie haben die Möglichkeit, die Wohnatmosphäre, die Raumaufteilung, die Dimensionen und die Hausausstattung in unserem Ausstellungshaus live zu erleben und Ihre Fragen einem kompetenten Fachberater vor Ort zu stellen – und so anhand von persönlichen Eindrücken herauszufinden, wie Sie sich Ihr Traumhaus vorstellen.
Tipps für das Musterhaus in Suhr
Ein entspannter und gleichzeitig produktiver Besuch im Musterhaus in Suhr – das gelingt mit unseren Tipps:
- Bringen Sie ausreichend Zeit mit, um entspannt durch das Musterhaus schlendern zu können und alle Eindrücke in Ruhe auf sich wirken zu lassen.
- Machen Sie Notizen oder Fotos, wenn Ihnen etwas am Musterhaus besonders gut gefällt oder bei der Besichtigung Fragen aufkommen. Unsere Fachberater vor Ort stehen Ihnen gerne mit Rat und Tat zur Seite.
- Wenn Sie bereits konkrete Fragen zu unseren Fertighäusern oder rund um den Hausbau mit Hanse Haus haben, vereinbaren Sie am besten bereits im Voraus einen Beratungstermin bei einem unserer Fachberater.
Leistungen
Unser Anspruch ist es, Sie sicher und entspannt durch die gesamte Bauphase zu begleiten. Ihr Projekt beginnt für uns schon lange bevor die ersten Wände gefertigt werden.
Von den Planungsgesprächen über die Detailplanung des Hauses bis hin zur Erstellung von Ausführungsplänen, statischen Berechnungen und Wärmeschutznachweisen übernehmen wir eine Vielzahl von wertvollen Serviceleistungen für Sie. Dazu gehören unter anderem:
- Bedarfsanalyse
- Barrierefreiheit
- Vorentwurfsplanung und Angebot
- Festpreisgarantie 15 Monate
- Bauantrag
- Wärmeschutzberechnung / Energiebedarfsausweis
- Baugrundgutachten
- Werkplanung
- Deckenaussparung
- Ausstattungsberatung / Bemusterung
- Statik
- Beantragung der Hausanschlüsse
- Anlaufberatung
- Bauleitung, Überwachung und Betreuung
- Baustelleneinrichtung
- Versicherungsschutz
- Montage
- Luftdichtigkeitsprüfung (Blower-Door-Test)
- DGNB-Zertifizierung
- Garantie/Gewährleistung
- Kundendienst
Die einzelnen Leistungen können von der jeweiligen Ausbaustufe abweichen. Weitere Infos zu den Inklusivleistungen finden Sie auf unserer Website.
- > 38.600 zufriedene Hanse Haus-Bauherren
- 13. Mal in Folge: fairster Fertighausanbieter
- Ausgezeichnetes Preis-Leistungs-Verhältnis

- Kamber, Christoph
- Lüscher, Erhard
Bernstrasse Ost 46, 5034 Suhr
Öffnungszeiten: Fr. - So. 11-18 Uhr; Mo. - Do. geschlossen
Häuser: Cubus 162
- Kamber, Christoph
- Lüscher, Erhard
Bernstrasse Ost 46, 5034 Suhr
Öffnungszeiten: Fr. - So. 11-18 Uhr; Mo. - Do. geschlossen
Häuser: Cubus 162
Vereinbaren Sie einen unverbindlichen & kostenfreien Termin und erhalten Sie zusätzlich als Download oder per Post unseren Fertighaus-Katalog mit allen Hausentwürfen und ausführlichen Infos zum Hausbau mit Hanse Haus. In unserer Aktionsbroschüre finden Sie die Preise für unsere Aktionshäuser.













