Une conception intelligente sur un niveau
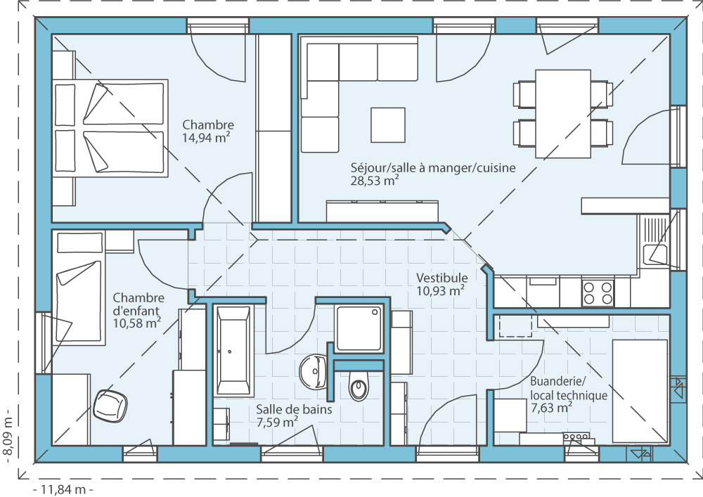
Le Bungalow 80 montre de quelle manière un plan de construction intelligent peut créer de l'espace pour une famille de trois personnes sur 80 m² de surface habitable. L'agencement astucieux des pièces permet de disposer en plus de l'espace ouvert comprenant le salon et la cuisine, d'une chambre principale, d'une chambre d'enfant et d'une salle de bain avec cloison en T. En face de la penderie, l'ensemble des installations techniques et de chauffage trouvent leur place de manière optimale dans le local technique et la buanderie. Si vous le souhaitez, la maison peut également être agrandie avec un oriel et un toit en croupe, créant ainsi environ 7 m² d'espace supplémentaire dans l'espace de vie.
| Caractéristiques | |
|---|---|
| Type de toit | Toit en croupe |
| Pente du toit | 25° |
| Surface habitable | 80,20 m² |
| Surface au sol | 80,20 m² |
| Nombre d'étages | 1 |
Option
de plans:
- La baie vitrée du toit en croupe, qui s'accorde parfaitement au style de la maison, agrandit la surface habitable d'environ 7 m².
- Du fait du local technique/buanderie, le plan prévoit la possibilité de construire la maison sur une dalle de fondation. Si vous souhaitez ajouter une cave, le local technique deviendra la sortie de la cave.
Exemples de
plans d'étage
Faites-vous une idée de cette maison à travers les plans d'étage. Nous vous montrerons nos suggestions de planification, qui peuvent bien sûr être modifiées individuellement sur demande.

Maisons de la même série







