Des lignes épurées, un look moderne
Des lignes claires et une architecture sobrement structurée déterminent le caractère du Cubus 162. 162 m² sur lesquels il vous est permis de parfaitement mettre en scène vos représentations de design et de culture de vie. Des éléments visuels tels que le double escalier à palier peuvent être complétés par des détails pratiques tels que la niche penderie devant les toilettes, le garde-manger ou le renfoncement dans l'entrée du rez-de-chaussée. Si vous le souhaitez, vous pouvez agrandir le Cubus 162 avec une loggia à l'étage supérieur. Protégé du vent et des regards indiscrets, le toit-terrasse est l'endroit idéal pour prendre un bain de soleil ou passer une soirée d'été à deux.
| Caractéristiques | |
|---|---|
| Type de toit | Toit plat |
| Pente du toit | 2° |
| Surface habitable | 154,09 m² |
| Surface au sol | 161,78 m² |
| Nombre d'étages | 2 |
Particularités
& extras
Vivre cette maison en direct:
Bernstrasse Ost 46
CH-5034 Suhr
Téléphone +41 (62) 8429670
Option de plans:
- La loggia vous permet de passer d'agréables moments de détente. Sur plus de 17 m², il y a même de la place pour partager un moment de convivialité entre amis.
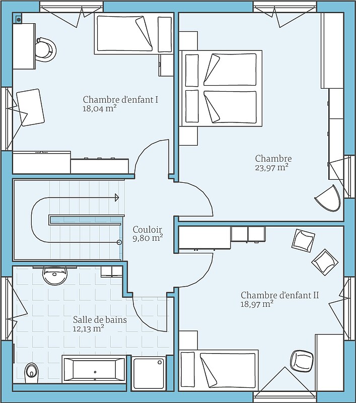
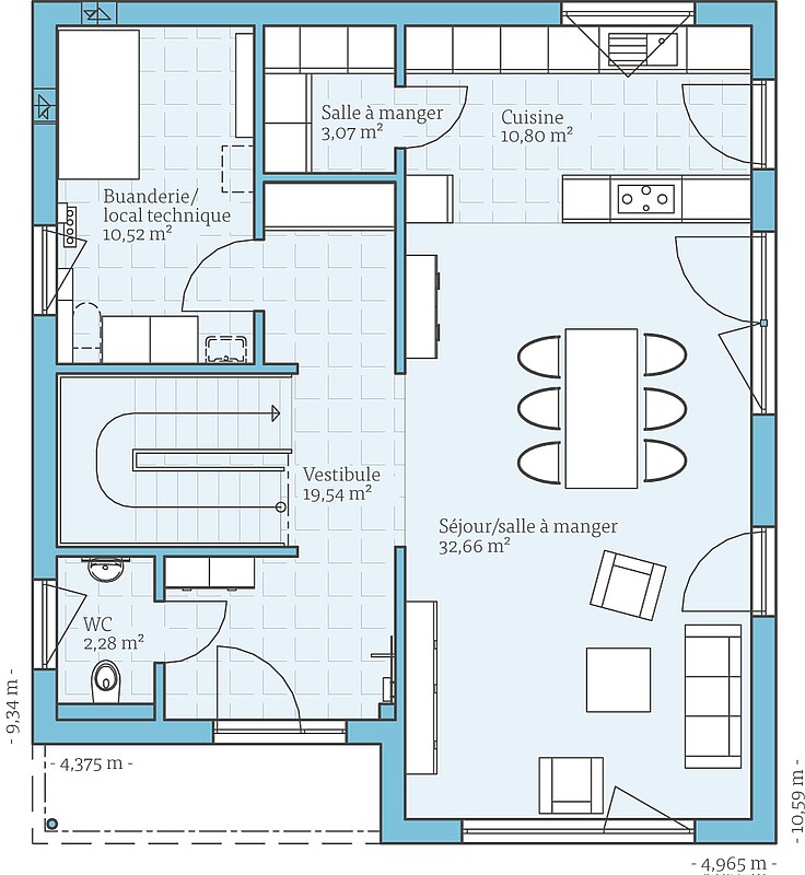
Exemples de
plans d'étage
Faites-vous une idée de cette maison à travers les plans d'étage. Nous vous montrerons nos suggestions de planification, qui peuvent bien sûr être modifiées individuellement sur demande.

Maisons de la même série







