Una casa come hai sempre desiderato
Quando i bambini sono ancora piccoli, la priorità è una progettazione della casa adatta ai bambini e alla famiglia. Quando i figli sono cresciuti e vanno per la loro strada, cambiano le esigenze e spesso c’è la voglia di costruire secondo le proprie necessità.
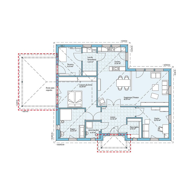
Ed è proprio pensando a un modo di abitare confortevole e senza barriere in età avanzata che nasce, ad esempio, il concetto Bungalow 139 con tetto a padiglione. Tutte le stanze in questo Bungalow sono su un piano e quindi comodamente raggiungibili senza scale. L’ampia distribuzione degli spazi abitativi crea un’atmosfera aperta gradevole. Ideale quindi per soddisfare ancora una volta il desiderio di una casa perfetta.
| Caratteristiche | |
|---|---|
| Forma tetto | Tetto a padiglione |
| Inclinazione del tetto | 25° |
| Superficie abitativa | 132,55 m² |
| Superficie | 143,77 m² |
| Numero piani | 1 |
Besonderheiten
& Extras
Dieses Haus live erleben:
Buchstraße 3
97789 Oberleichtersbach
Telefon 09741-808-0
Beispiel
Grundriss
Bekommen Sie durch die Grundrisse einen Eindruck von diesem Haus. Wir zeigen Ihnen unsere Planungsvorschläge, die natürlich auf Wunsch individuell umgeplant werden können.

Case della stessa serie












