Variant con appartamento annesso
Variant 25-150 con appartamento annesso
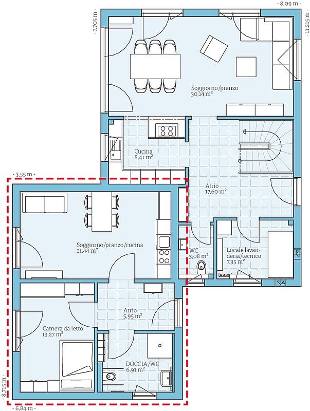
Abbiamo integrato uno speciale appartamento nel design della casa modello Variant 25-150. Il tetto piatto della costruzione cubica si integra armoniosamente nell'architettura della casa e crea lo spazio per l'appartamento aggiuntivo di quasi 50 m². Completamente a livello del suolo,
è accessibile a residenti di tutte le età e offre tutti i vantaggi di un appartamento senza barriere. Oltre a un soggiorno, una sala da pranzo e un angolo cottura a spazio aperto, l'appartamento include una camera da letto separata e un bagno con doccia.
| Caratteristiche | |
|---|---|
| Forma tetto | Tetto a due falde |
| Inclinazione del tetto | 25° |
| Altezza di gronda | 200 cm |
| Superficie abitativa | 174,98 m² |
| Superficie abitativa suite secondaria | 47,43 m² |
| Superficie abitativa appartamento principale | 127,55 m² |
| Superficie | 185,74 m² |
| Superficie suite secondaria | 47,43 m² |
| Superficie appartamento principale | 138,31 m² |
| Numero piani | 1,5 |
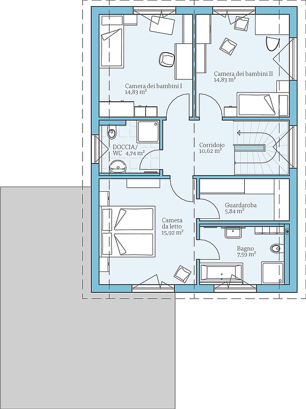
Esempi di
planimetrie
Fatevi un'idea di questa casa con gli esempi di planimetrie. Vi mostriamo le nostre proposte di progettazione, che naturalmente possono essere modificate individualmente su richiesta.

Case della stessa serie
Mostra serie casa








