Ampio spazio per le vostre idee
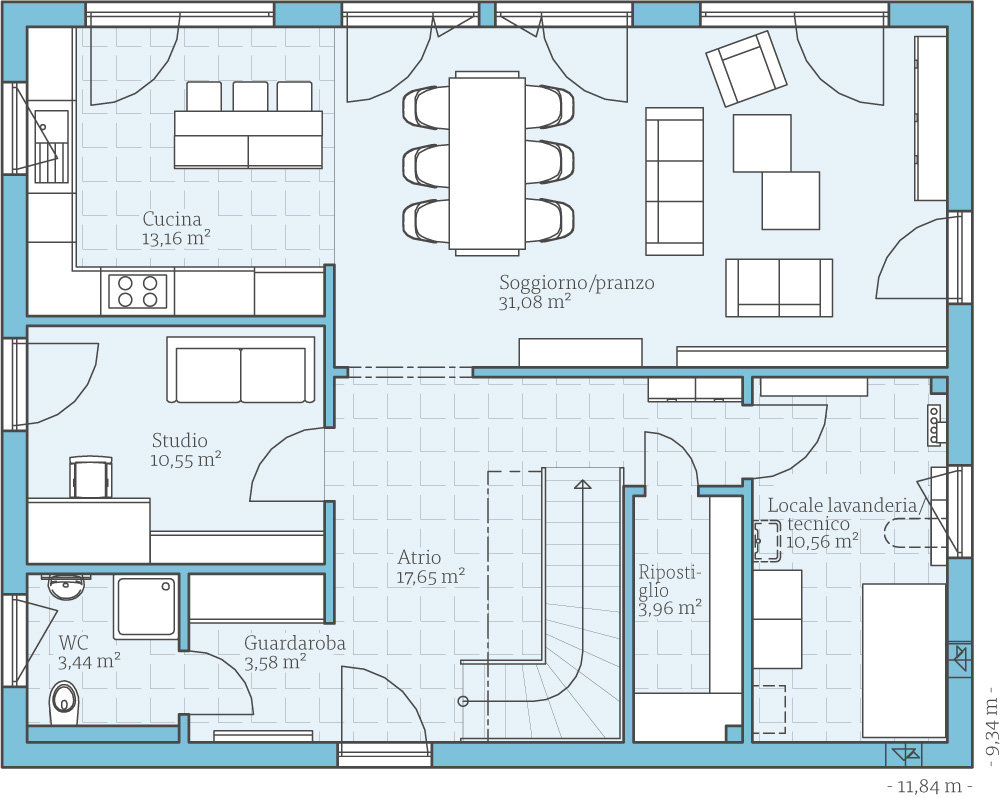
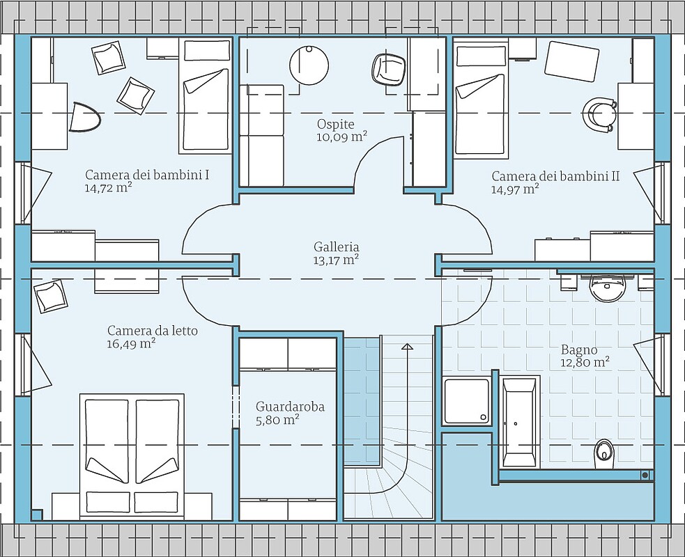
Questo modello di casa serie Variant offre anch'essa un generoso spazio di 184 m² di superficie per tutta la famiglia. Il piano terra offre un soggiorno aperto con la zona pranzo e la cucina, nella mansarda sono previsti il bagno di famiglia, la camera da letto principale con spogliatoio e due camere per bambini.
Per gli ospiti e il lavoro, in questo progetto sono previsti due locali separati. In alternativa, la camera degli ospiti in soffitta può essere utilizzata anche come camera supplementare per i bambini. Al piano terra c'è anche un ripostiglio separato e una nicchia guardaroba.
| Caratteristiche | |
|---|---|
| Forma tetto | Tetto a due falde |
| Inclinazione del tetto | 35° |
| Altezza di gronda | 120 cm |
| Superficie abitativa | 163,86 m² |
| Superficie | 182,02 m² |
| Numero piani | 1,5 |
Opzione di
pianificazione
- Con il timpano opzionale si estende il piano terra di quasi 5 m². La camera degli ospiti può essere utilizzata anche come terza camera dei bambini grazie al timpano, perché guadagna spazio ed è luminosa e inondata di luce grazie al fronte della finestra.
Esempi di
planimetrie
Fatevi un'idea di questa casa con gli esempi di planimetrie. Vi mostriamo le nostre proposte di progettazione, che naturalmente possono essere modificate individualmente su richiesta.

Case della stessa serie








