Grosszügig wohnen im Zweifamilienhaus
In dem kompakten Baukörper unseres Duo 229 sind eine Wohneinheit mit 181 m² Wohnfläche sowie eine knapp 48 m² grosse, eingeschossige Einliegerwohnung untergebracht. Das Haus hat einen Kniestock von 1,20 m und eine Dachneigung von 35 °. Die zwei separaten Hauseingänge für beide Wohneinheiten befinden sich an der Traufseite.
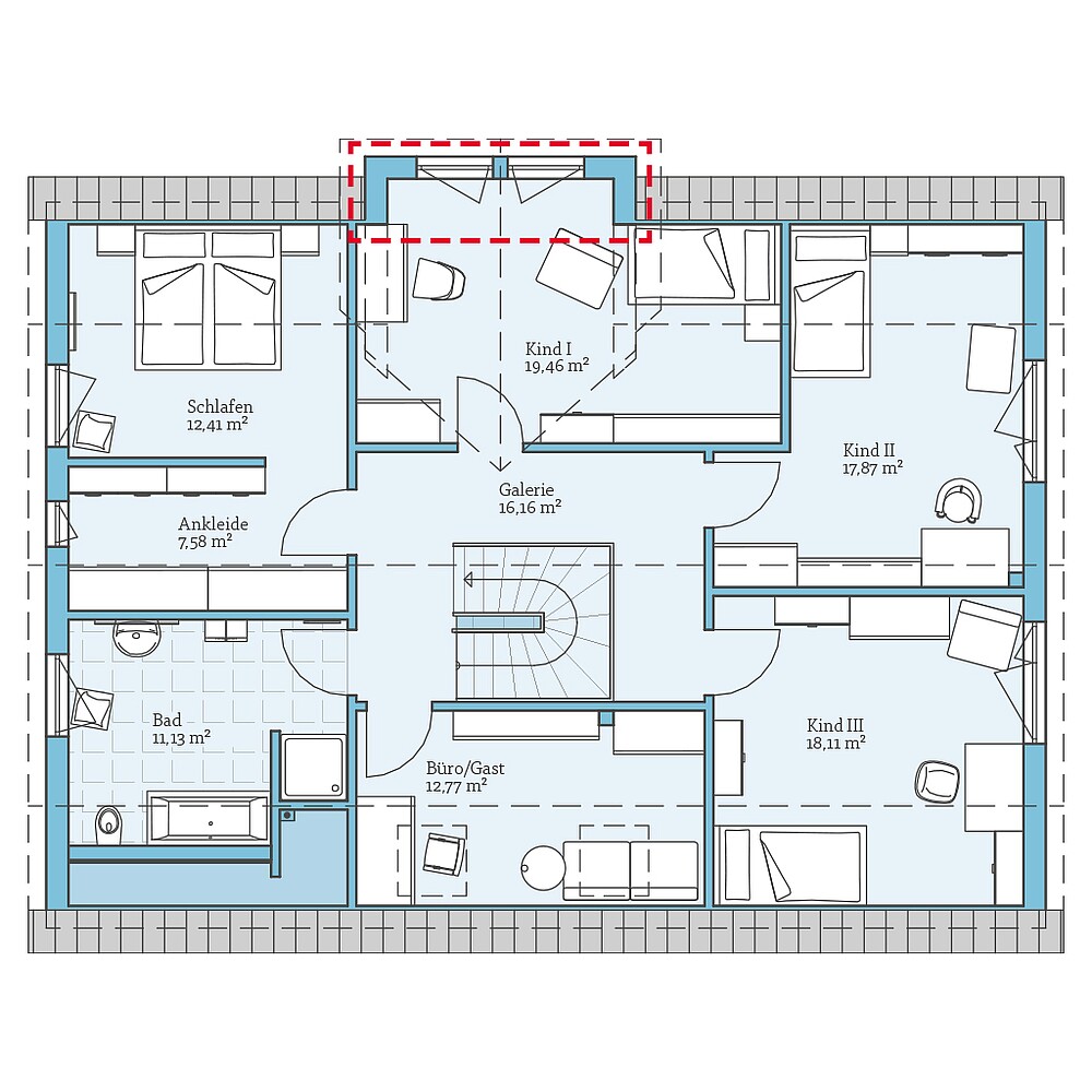
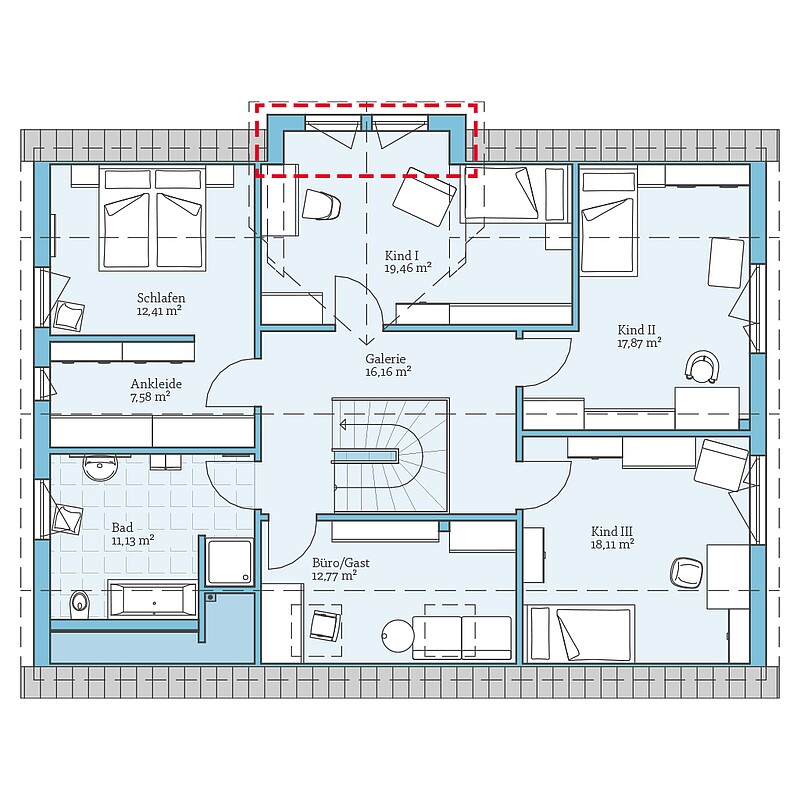
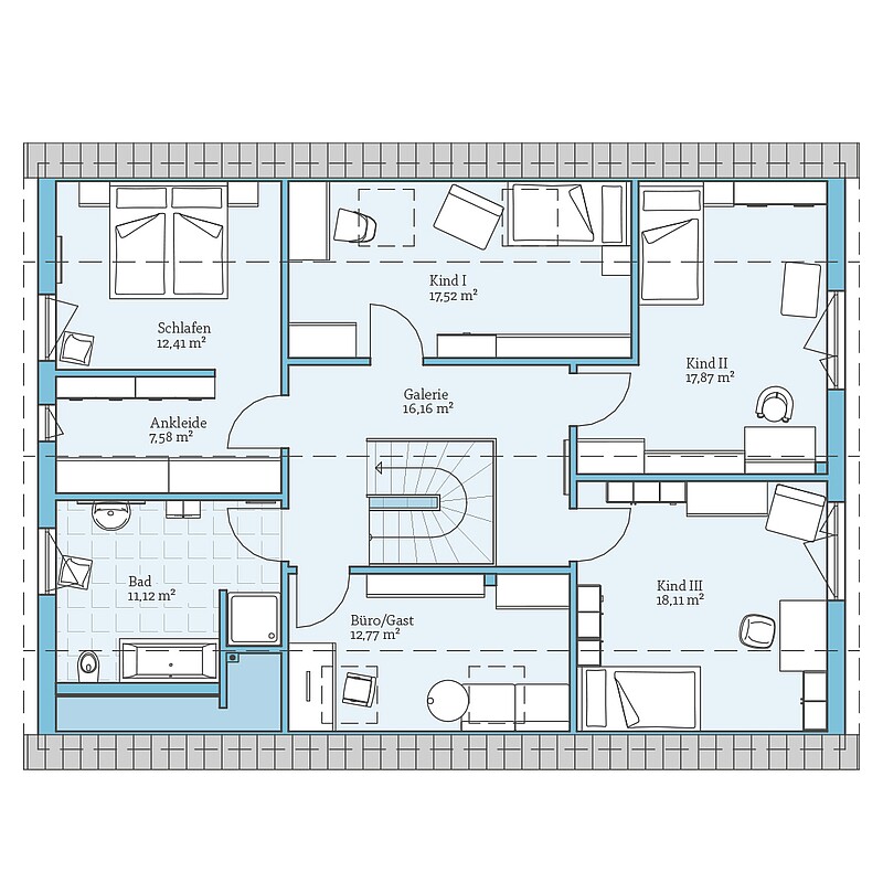
Das Dachgeschoss ist sehr grosszügig gestaltet und erweitert so die Wohnfläche der Hauptwohnung, da es sich über das komplette Erdgeschoss erstreckt. Es ist dort Platz für drei Kinderzimmer, ein Gäste- oder Arbeitszimmer, das Elternschlafzimmer mit Ankleide sowie ein Familienbad.
| Merkmale | |
|---|---|
| Dachform | Satteldach |
| Dachneigung | 35° |
| Kniestock | 120 cm |
| Wohnfläche Einliegerwohnung | 47,75 m² |
| Wohnfläche Hauptwohnung | 158,80 m² |
| Grundfläche Einliegerwohnung | 47,75 m² |
| Grundfläche Hauptwohnung | 181,08 m² |
| Anzahl Geschosse | 1,5 |
Anbau
Möglichkeiten
- Zwerchgiebel
- Spitzböden
Beispiel
Grundrisse
Bekommen Sie durch die Grundrisse einen Eindruck von diesem Haus. Wir zeigen Ihnen unsere Planungsvorschläge, die natürlich auf Wunsch individuell umgeplant werden können.
Zusätzlich haben wir für dieses Haus interessante Planungsoptionen vorbereitet. Klicken Sie sich durch und sehen Sie selbst, welche Varianten wir uns überlegt haben.











