Die Hanse Haus Villa 165: moderne Stadtvilla mit Stil
Der Hausentwurf Villa 165 verspricht grosszügiges Wohnen auf zwei Vollgeschossen. Seine trendige Farb- und Materialkombination mit Echtholzfassaden am Anbau verleiht der klassischen Stadtvillenarchitektur einen ganz neuen, modernen Charakter.
In der Fertighausausstellung in Frechen bei Köln können Sie dieses Haus besichtigen und sich vor Ort einen eigenen Eindruck verschaffen. Dank der hervorragenden Wärmedämmung und des Energiekonzeptes erfüllt das Musterhaus die Anforderungen an ein KfW-40-Effizienzhaus.
Klassische Stadtvillenarchitektur liegt nach wie vor voll im Trend. Kein Wunder, schliesslich passt sie mit ihrem urbanen Stil sowohl in stadtnahe als auch in ländliche Gebiete und ist in der Grundrissgestaltung sehr variabel. All unsere Stadtvillenentwürfe können sowohl innen als auch aussen individuell nach Ihren Wünschen und Bedürfnissen angepasst werden.
Wir legen grossen Wert darauf, mit funktionalen Details wie z. B. versteckten Stauräumen, Ankleidezimmern, einem grossen Garderobenbereich oder einem praktischen Wäscheabwurfschacht den Alltag für Sie komfortabler zu gestalten. Schliesslich möchten wir, dass Sie sich in Ihrem Hanse-Haus wohlfühlen und das Leben in vollen Zügen geniessen können.
| Merkmale | |
|---|---|
| Dachform | Walmdach |
| Dachneigung | 25° |
| Wohnfläche | 156,85 m² |
| Grundfläche | 164,33 m² |
| Anzahl Geschosse | 2 |
Besonderheiten
& Extras
Dieses Haus live erleben:
Europaallee 45
Parzelle 21
50226 Frechen (bei Köln)
Telefon 02234-9906500
Anbaumöglichkeiten:
- Erker mit Flachdach
Beispiel
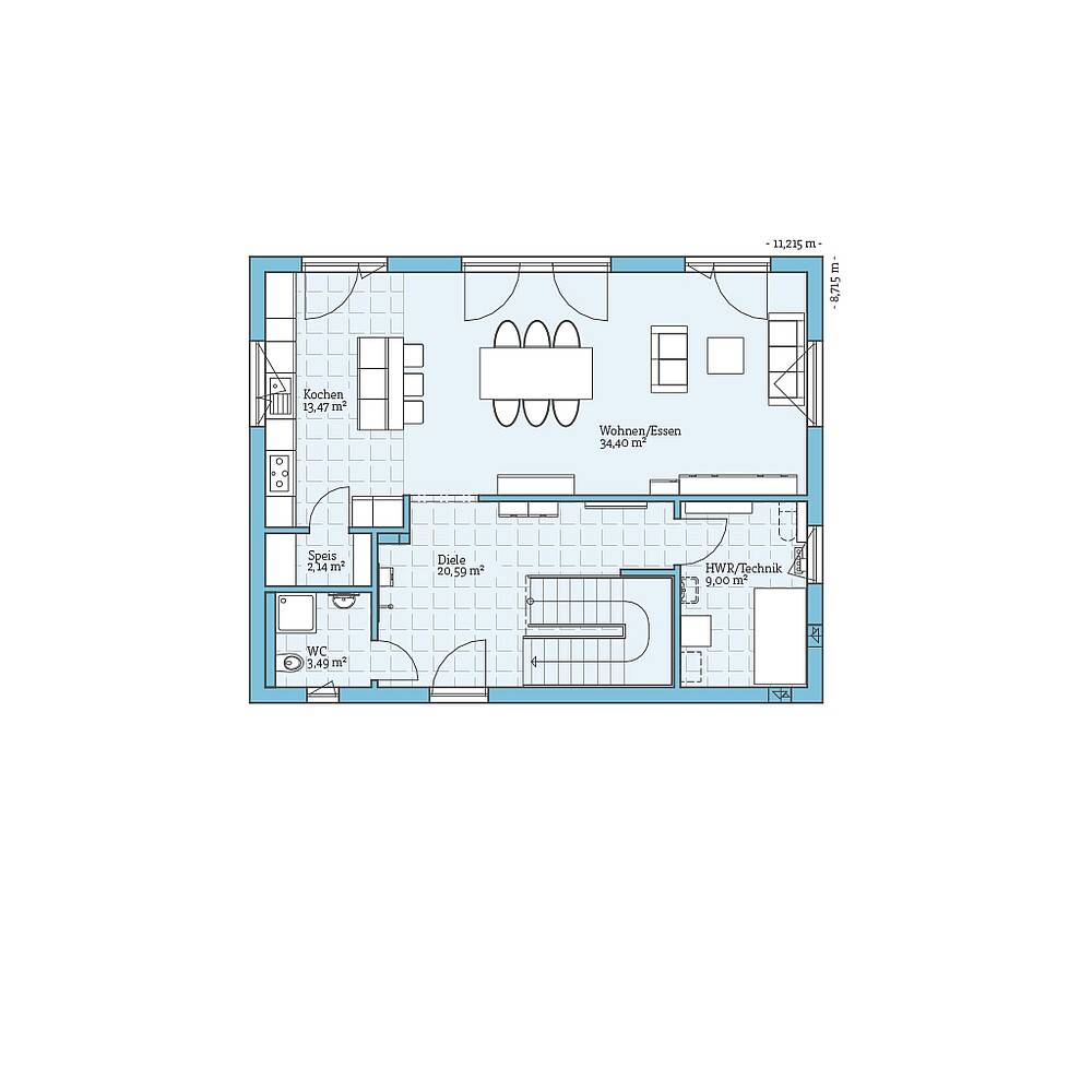
Grundrisse
Bekommen Sie durch die Grundrisse einen Eindruck von diesem Haus. Wir zeigen Ihnen unsere Planungsvorschläge, die natürlich auf Wunsch individuell umgeplant werden können.
Zusätzlich haben wir für dieses Haus interessante Planungsoptionen vorbereitet. Klicken Sie sich durch und sehen Sie selbst, welche Varianten wir uns überlegt haben.
















