Villa de ville moderne et avec du style
Le modèle de maison Villa 165 promet une vie spacieuse sur deux étages complets. Sa combinaison de couleurs et de matériaux tendance, avec des façades en bois véritable sur l'extension, donne à l'architecture classique des villas de ville un caractère moderne et tout nouveau. L'exposition de maisons témoins à Frechen, près de Cologne, vous permet de découvrir cette maison et de vous faire votre propre opinion sur place. Grâce à l'excellente isolation thermique et au concept énergétique, la maison témoin répond aux exigences d'une maison à rendement
40.
L'architecture classique des villas de ville est toujours très en vogue. Ce n'est pas étonnant, après tout, avec son style urbain, elle s'intègre aussi bien dans les zones urbaines que rurales et est très flexible dans la conception de ses plans. Tous nos modèles de villas urbaines peuvent être adaptés individuellement à vos souhaits et à vos besoins, tant à l'intérieur qu'à l'extérieur.
| Caractéristiques | |
|---|---|
| Type de toit | Toit en croupe |
| Pente du toit | 25° |
| Surface habitable | 156,39 m² |
| Surface au sol | 164,08 m² |
| Nombre d'étages | 2 |
Particularités
& extras
Vivre cette maison en direct:
Europaallee 45
Parzelle 21
50226 Frechen (bei Köln)
Téléphone 02234-9906500
Option de plans:
- En option, la maison peut être agrandie par une extension à toit plat, dans laquelle il est possible d'aménager, par exemple, un espace de travail séparé avec des bureaux ou cabinets. La surface utilisable supplémentaire est de 40 m².
- L'extension de plain-pied offre un espace d'environ 16 m² pour la salle à manger. Cela permet de créer un bureau supplémentaire attenant à la salle de séjour. À Frechen, nous avons complété l'extension par un salon extérieur ouvert.
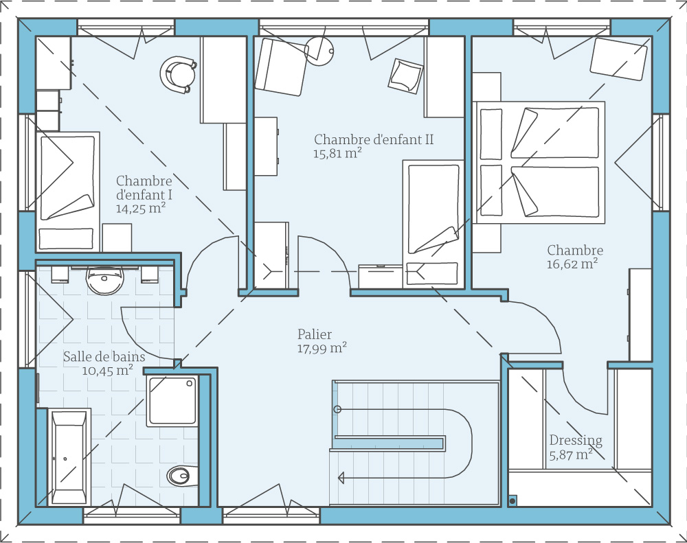
Exemples de
plans d'étage
Faites-vous une idée de cette maison à travers les plans d'étage. Nous vous montrerons nos suggestions de planification, qui peuvent bien sûr être modifiées individuellement sur demande.
Maisons de la même série














