La villa urbaine pas comme les autres
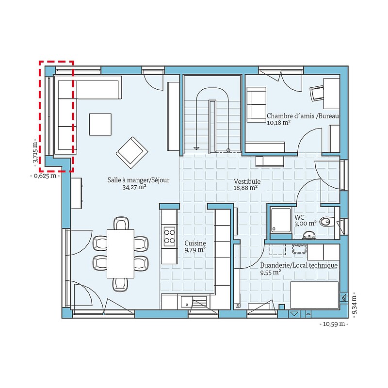
Logement spacieux sur deux étages complets: Bien que la surface de notre villa 166 soit inférieure d'environ 11 m² à celle de la villa 177/178, celle-ci offre suffisamment de surface pour une famille de quatre personnes. Le salon, la salle à manger et la cuisine sont disposés de la même manière que dans les deux plus grandes villas et sont baignés de lumière grâce aux éléments de fenêtre allant du sol au plafond.
Un escalier à palier mène à l'étage supérieur et se prête parfaitement à la conception d'un espace de rangement en dessous, très pratique. À l'étage supérieur se trouvent deux chambres d'enfants spacieuses d'environ 17,5 m² et la chambre à coucher des parents avec un dressing tout en longueur. Une solution en T a été mise en œuvre dans la spacieuse salle de bains familiale: les toilettes sont ainsi cachées et la douche peut être carrelée sur trois côtés. Par ailleurs, il y a de la place à l'étage pour un autre débarras. Ce visuel montre à quel point il est possible de personnaliser une maison Hanse. La modernité intemporelle et les proportions harmonieuses se reflètent dans l'aspect visuel présenté ici: la couleur grise des fenêtres et le crépi blanc s'harmonisent avec la petite extension de l'espace de vie contrastée par les briques rouges classiques.
| Caractéristiques | |
|---|---|
| Type de toit | Toit en croupe |
| Pente du toit | 25° / 28° |
| Surface habitable | 158,53 m² |
| Surface au sol | 166,19 m² |
| Nombre d'étages | 2 |
Particularités
& extras
Vivre cette maison en direct:
Münchner Straße 25 S
30855 Langenhagen
Téléphone 0511-7860631
Option
de plans:
Faites-vous une idée de cette maison à travers les plans d'étage. Nous vous montrerons nos suggestions de planification, qui peuvent bien sûr être modifiées individuellement sur demande.

Maisons de la même série















