La villa urbana un po’ diversa dal solito
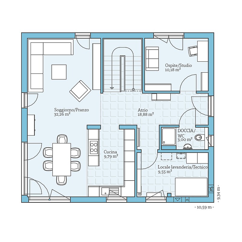
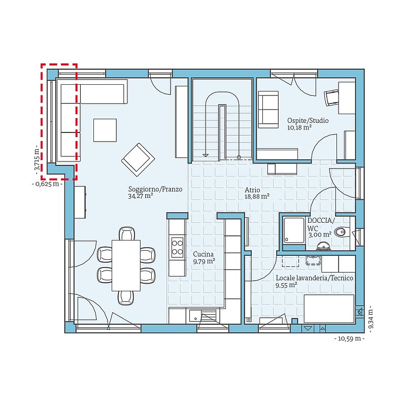
Ampi spazi su due piani completi: anche se la planimetria della nostra Villa 166 è circa 11 m² più piccola della Villa 177/178, c’è comunque spazio a sufficienza per una famiglia di quattro persone. La zona living, pranzo e cucina è disposta esattamente come quella delle altre due grandi ville e, grazie agli elementi finestra a pavimento, è molto luminosa.
La scala a palchetto porta al piano superiore ed è perfetta per inserirvi sotto un pratico ripostiglio. Al piano superiore ci sono due spaziose camere per i bambini di circa 17,5 m² e la camera matrimoniale con una lunga cabina armadio. Nell'ampia sala da bagno padronale è stata adottata la soluzione a T: il WC è nascosto e la doccia può essere piastrellata su tre lati. Al piano superiore c’è anche spazio per un altro ripostiglio.
La visualizzazione mostra come può essere personalizzata una casa Hanse Haus. L’aspetto della casa mostrato qui riflette la modernità senza tempo e le proporzioni armoniose: le finestre grigie e l’intonaco bianco confluiscono con la piccola estensione verso la zona living che a sua volta è sfalsata da classici mattoni rossi.
| Caratteristiche | |
|---|---|
| Forma tetto | Tetto a padiglione |
| Inclinazione del tetto | 25° / 28° |
| Superficie abitativa | 158,53 m² |
| Superficie | 166,19 m² |
| Numero piani | 2 |
Besonderheiten
& Extras
Vivi questa casa dal vivo:
Münchner Straße 25 S
30855 Langenhagen
Telefono: 0511-7860631
Opzione di
pianificazione
Fatevi un'idea di questa casa con gli esempi di planimetrie. Vi mostriamo le nostre proposte di progettazione, che naturalmente possono essere modificate individualmente su richiesta.

Case della stessa serie















