Un plan d'étage avec de nombreuses options de plan
La tant appréciée Villa 177 sert de base pour le plan de conception de maisons individuelles. Pour la maison témoin de Villingen-Schwenningen, une extension sur deux côtés a directement été ajoutée au plan du rez-de-chaussée. Une extension de la cuisine, revêtue de bois, agrandit l'espace cuisine et crée, grâce au toit plat qui y est rattaché, un espace extérieur couvert pour s'asseoir et qui est également accessible depuis la salle à manger par une grande porte-fenêtre. Le deuxième agrandissement se distingue immédiatement par l'extension de la buanderie avec l'abri pour voiture. Celle-ci permet de couvrir la zone d'entrée et de créer un espace de stockage pour les vélos et les poubelles.
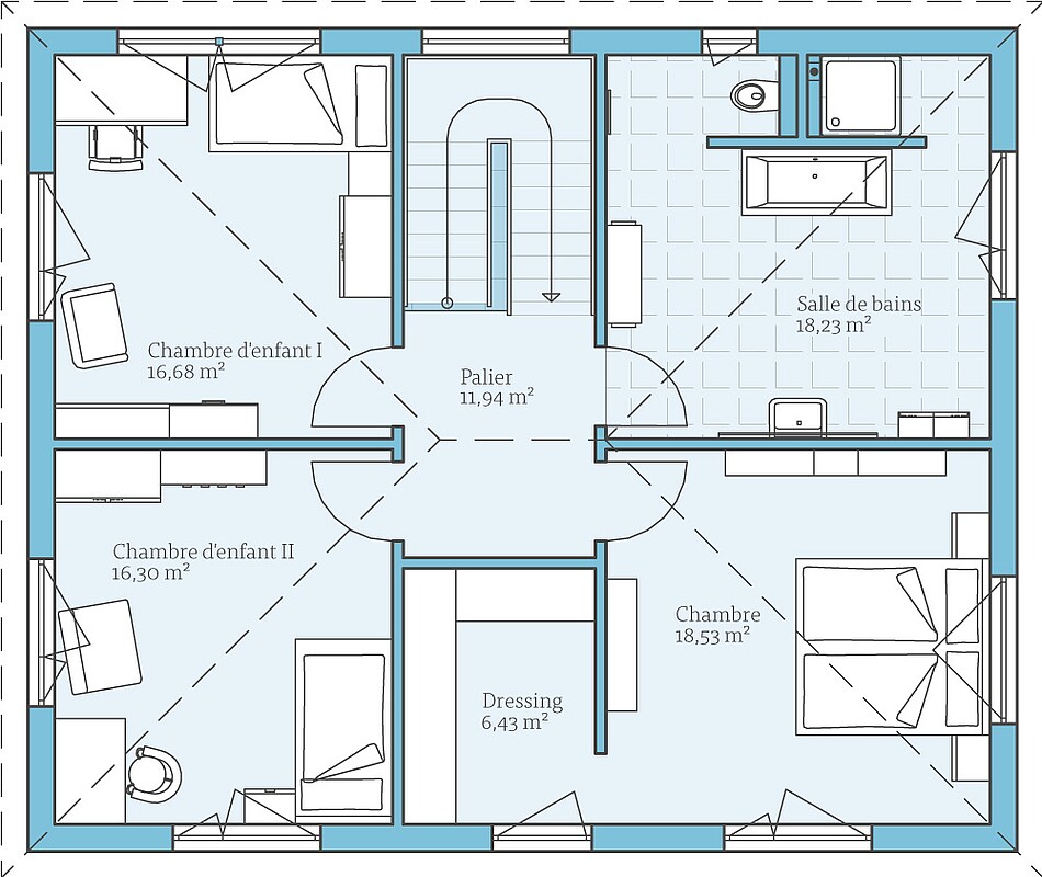
Le rez-de-chaussée des deux modèles de plan offre un espace de vie ouvert, un WC avec douche et un bureau ou une chambre d'amis. Deux chambres d'enfants, la chambre principale des parents avec dressing et la salle de bain familiale avec douche et baignoire sont situées à l'étage supérieur.
Si une troisième chambre d'enfant est nécessaire, la chambre d'amis ou le bureau du rez-de-chaussée peut être transformé en chambre pour les parents. Une chambre supplémentaire serait ainsi disponible pour les enfants à l'étage supérieur.
| Caractéristiques | |
|---|---|
| Type de toit | Toit en croupe |
| Pente du toit | 25° |
| Surface habitable | 184,98 m² |
| Surface au sol | 197,35 m² |
| Nombre d'étages | 2 |
Particularités
& extras
Vivre cette maison en direct:
Hausbaupark Villingen-Schwenningen
Messe 1
78056 Villingen-Schwenningen
Téléphone 07720-9557177
Option de plans:
Vous pouvez agrandir ce modèle de plan avec par exemple les éléments de construction suivants:
- Un coin salon extérieur couvert d'une superficie d'environ 9 m² s'intègre parfaitement à l'architecture de la maison.
- L'extension de la cuisine agrandie l'espace de vie d'environ 6 m² et permet d'accéder au coin salon extérieur.
- L'extension de la buanderie d'environ 3,5 m² et le carport offrent un espace extérieur supplémentaire protégé des intempéries.
Exemples de
plans d'étage
Faites-vous une idée de cette maison à travers les plans d'étage. Nous vous montrerons nos suggestions de planification, qui peuvent bien sûr être modifiées individuellement sur demande.

Maisons de la même série














