Ein Basisentwurf, zwei Musterhäuser: die Hanse Haus Fertighaus Villa 177
Was, wenn man einen Grundriss gefunden hat, bei dem fast alles perfekt ist – aber eben nur fast?
Kompromisse eingehen und hoffen, dass man im Alltag schon klarkommt? Wir meinen „Nein“ und verpassen dem Grundriss so lange einen Feinschliff, bis er für die Bauherren perfekt ist.
Wie einfach das mit Hanse Haus ist, zeigen wir mit den beiden folgenden Planungsoptionen.
Fertighaus Villa in Villingen-Schwenningen: unsere Variante 1 für die Villa 177
Die beliebte Villa 177 ist die Grundlage für eine individuelle Hausplanung. Der Erdgeschossgrundriss wurde für das Musterhaus in Villingen-Schwenningen gleich an zwei Seiten um ein Anbauteil ergänzt:
- An der Küche vergrössert ein holzverschalter Anbau den Kochbereich und schafft gleichzeitig einen überdachten Freisitz, der über eine grosse Terrassentür auch aus dem Essbereich erreichbar ist.
- Als zweites Anbauteil fällt sofort der Carport auf, der auch den Eingangsbereich überdacht und Stellfläche für Fahrräder, Mülltonnen und Co. schafft.
Fertighaus Villa in Oberleichtersbach: unsere Variante 2 für die Villa 177, die Villa 178
| Merkmale | |
|---|---|
| Dachform | Walmdach |
| Dachneigung | 25° |
| Wohnfläche | 169,86 m² |
| Grundfläche | 177,32 m² |
| Anzahl Geschosse | 2 |
Besonderheiten
& Extras
Dieses Haus live erleben:
Hausbaupark Villingen-Schwenningen
Messe 1
Haus-Nr. 35
78056 Villingen-Schwenningen
Telefon 07720-9557177
Beispiel
Grundrisse
Bekommen Sie durch die Grundrisse einen Eindruck von diesem Haus. Wir zeigen Ihnen unsere Planungsvorschläge, die natürlich auf Wunsch individuell umgeplant werden können.
Zusätzlich haben wir für dieses Haus interessante Planungsoptionen vorbereitet. Klicken Sie sich durch und sehen Sie selbst, welche Varianten wir uns überlegt haben.
- Sowohl der hier gezeigte Basisgrundriss als auch das Musterhaus bieten im Erdgeschoss einen offenen Wohnbereich, WC mit Dusche und ein Arbeits- bzw. Gästezimmer.
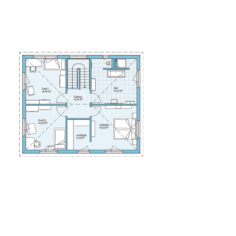
- Zwei Kinderzimmer, das Elternschlafzimmer mit Ankleide und das Familienbad mit Dusche und Badewanne sind im Obergeschoss der beiden Planungsvarianten untergebracht.
- Wird noch ein drittes Kinderzimmer benötigt, kann das Gäste- bzw. Arbeitszimmer im Erdgeschoss zum Elternschlafzimmer umgeplant werden. Dann steht im Obergeschoss ein kompletter Raum mehr für den Nachwuchs zur Verfügung.
















