Deux étages complets sous le toit en batière
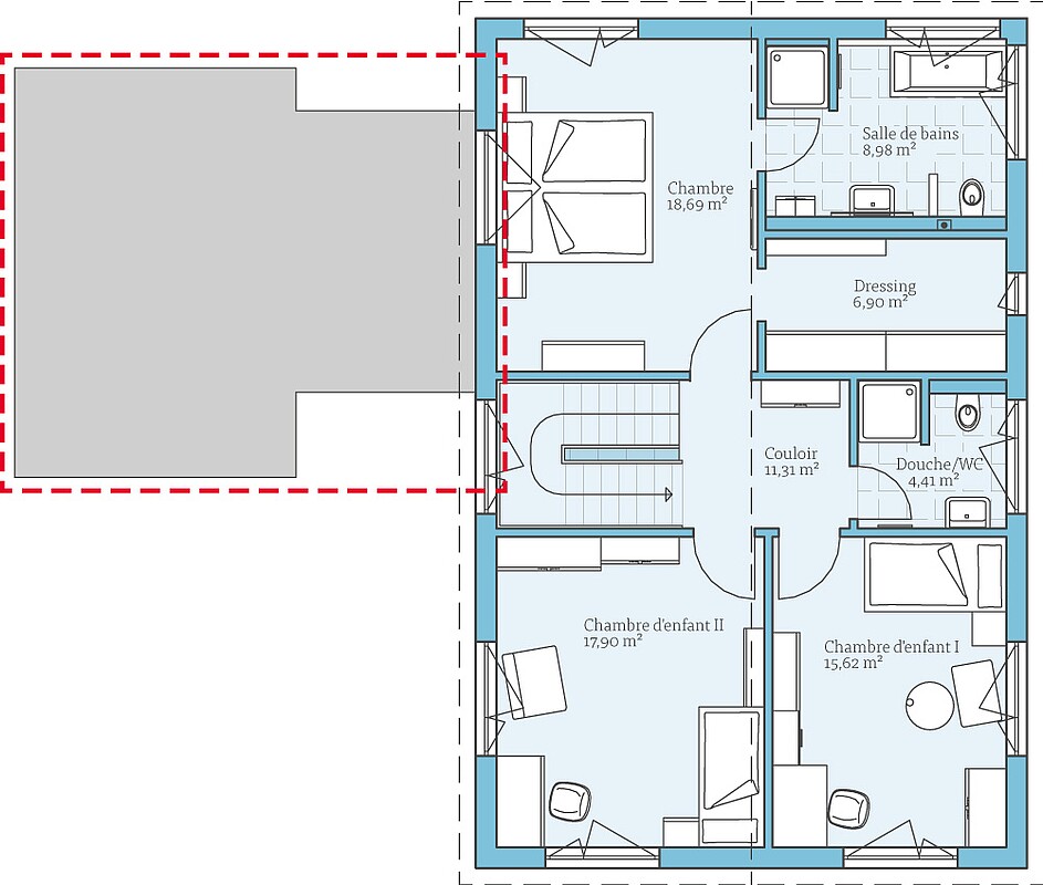
La maison témoin du modèle Villa 169 offre beaucoup d'espace avec son toit à pignon plat et ses deux étages complets. Le rez-de-chaussée comprend le salon, la salle à manger et la cuisine, un bureau ou une chambre d'amis, la buanderie ou le local technique et une salle de douche. À l'étage supérieur se trouve la chambre principale avec sa propre salle de bains et son dressing, ainsi que deux chambres d'enfants et une salle de douche.
| Caractéristiques | |
|---|---|
| Type de toit | Toit en bâtière |
| Pente du toit | 25° |
| Surface habitable | 161,74 m² |
| Surface au sol | 169,45 m² |
| Nombre d'étages | 2 |
Particularités
& extras
Vivre cette maison en direct:
Ludwig-Erhard-Straße 27
61118 Bad Vilbel
Téléphone 06101-9870616
Option de plans:
En option, une annexe à toit plat séparée avec garage, permet un accès à la maison à l'abri des intempéries. La pièce d'appoint du sous-sol offre un espace de stockage pratique.
Exemples de
plans d'étage
Faites-vous une idée de cette maison à travers les plans d'étage. Nous vous montrerons nos suggestions de planification, qui peuvent bien sûr être modifiées individuellement sur demande.

Maisons de la même série
















