Zwei Pultdächer überdachen zwei Vollgeschosse
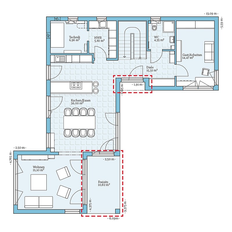
Der Hausentwurf Vita 209 überzeugt mit jeder Menge Platz auf zwei Vollgeschossen und cleveren Planungsdetails. Im Erdgeschoss ist die Küche übergangslos als zentraler Raum eingeplant. Sie öffnet sich zum grosszügigen Wohn- und Essbereich und verfügt über einen direkten Zugang zum Garten und zum Hauswirtschaftsraum. Das Dusch-WC und das geräumige Gäste- oder Arbeitszimmer bieten beste Voraussetzungen dafür, barrierefreies Wohnen auf einer Ebene einzurichten.
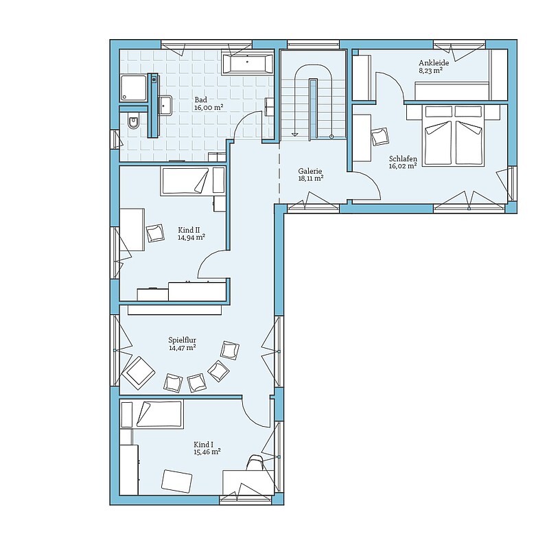
Im Obergeschoss ist das grosse Familienbad im Zentrum platziert. Durch den L-förmigen Grundriss ergibt sich eine räumliche Trennung zwischen dem Elternschlafzimmer mit Ankleide und dem offen gestalteten Kinderbereich mit zwei Kinderzimmern und einem gemeinsamen Spielflur. Dieser kann auch als zusätzliches Zimmer abgetrennt werden.
| Merkmale | |
|---|---|
| Dachform | Zeltdach |
| Dachneigung | 5° |
| Wohnfläche | 194,87 m² |
| Grundfläche | 209,50 m² |
| Anzahl Geschosse | 2 |
Besonderheiten
& Extras
Dieses Haus live erleben:
Xaver-Fuhr-Str. 101
68163 Mannheim
Anbaumöglichkeiten:
- eingeschossiger Anbau
- überdachter Freisitz
- wettergeschützter Eingangsbereich
Beispiel
Grundrisse
Bekommen Sie durch die Grundrisse einen Eindruck von diesem Haus.
Wir zeigen Ihnen unsere Planungs-Vorschläge, die natürlich auf Wunsch individuell umgeplant werden können.














