Due tetti a falde coprono due piani completi
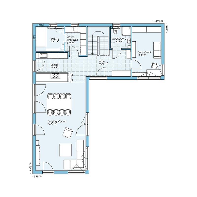
Il progetto di casa Vita 209 convince per l’ampio spazio su due piani completi e i dettagli di progettazione intelligenti. Al pianoterra è dislocata la cucina integrata armoniosamente come locale centrale. Essa si apre sulla spaziosa zona living e pranzo e ha un accesso diretto al giardino e alla lavanderia. La doccia/WC e la spaziosa camera degli ospiti o studio offrono le migliori condizioni per una soluzione abitativa senza barriere su un solo piano.
Al piano superiore è collocata l’ampia sala da bagno padronale al centro. Grazie alla pianta a L, si crea una separazione degli spazi tra la camera da letto matrimoniale con cabina armadio e la zona bambini dalla struttura aperta con due camere e un corridoio comune per giocare. Questo può anche essere separato creando una camera aggiuntiva.
| Caratteristiche | |
|---|---|
| Forma tetto | Tetto a tenda |
| Inclinazione del tetto | 5° |
| Superficie abitativa | 194,87 m² |
| Superficie | 209,50 m² |
| Numero piani | 2 |
Particolarità
della casa
Vivi questa casa dal vivo:
Xaver-Fuhr-Str. 101
68163 Mannheim
Opzione di
pianificazione
Fatevi un'idea di questa casa con gli esempi di planimetrie. Vi mostriamo le nostre proposte di progettazione, che naturalmente possono essere modificate individualmente su richiesta.

Case della stessa serie









