Une belle hauteur sous plafond dans la maison jumelée
Les modèles de maisons avec une pente de toit de 25° et un mur nain élevé sont très appréciés par nos maîtres d'ouvrage. Les raisons : une grande hauteur sous plafond, un extérieur moderne et une architecture agréée dans de nombreuses zones de construction. Le modèle de maison Doppelhaus 25-125 montre qu'il est également possible d'adapter le concept d'habitation pour en faire une maison jumelée classique.
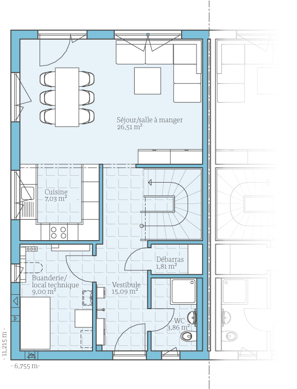
Chacune des deux parties de la maison jumelée a une superficie nette de 125 m² et peut être complétée si besoin d'une cave. La cave serait ainsi le meilleur endroit pour y stocker les installations techniques et de chauffages, libérant ainsi de l'espace au rez-de-chaussée pour une chambre d'amis ou un bureau.
| Caractéristiques | |
|---|---|
| Type de toit | Toit en bâtière |
| Pente du toit | 25° |
| Échine | 200 cm |
| Surface habitable par unité | 116,64 m² |
| Surface au sol par unité | 125,56 m² |
| Nombre d'étages | 1,5 |
Option
de plans:
- L'ajout d'une cave crée non seulement un espace supplémentaire au niveau du sous-sol dans lequel peuvent être stockées les installations techniques et de chauffages, mais en libère
aussi au niveau du rez-de-chaussée afin d'y aménager un bureau ou une chambre d'amis.
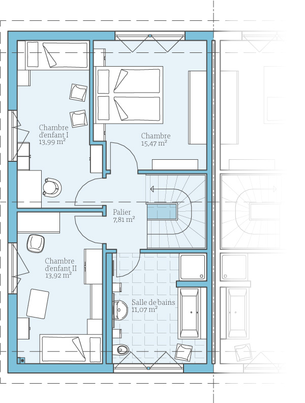
Exemples de
plans d'étage
Faites-vous une idée de cette maison à travers les plans d'étage. Nous vous montrerons nos suggestions de planification, qui peuvent bien sûr être modifiées individuellement sur demande.

Maisons de la même série








