De bonnes relations de voisinage
La construction d'une maison jumelée offre de nombreux avantages. En particulier dans les zones résidentielles où le prix des terrains est élevé, l'espace réduit dont a besoin une maison jumelée représente un avantage considérable.
Il vous est également possible de concevoir votre maison jumelée comme une maison multi générationnelle, afin que vos parents puissent rester pour leurs vieux jours au plus près de la famille. Quelle que soit la façon dont vous concevez votre maison jumelée, vous disposez d'un avantage certain : vous choisissez vous-même vos voisins directs. Les habitants des deux moitiés de maison pourront réaliser leurs propres envies de conception. Au lieu d'un schéma de couleurs uniforme, des combinaisons de couleurs telles que celles présentées pour la maison Doppelhaus 35-130 sont également très harmonieuses.
| Caractéristiques | |
|---|---|
| Type de toit | Toit en bâtière |
| Pente du toit | 35° |
| Échine | 120 cm |
| Surface habitable par unité | 114,85 m² |
| Surface au sol par unité | 130,44 m² |
| Nombre d'étages | 1,5 |
Option
de plans:
- Les grandes baies vitrées du pignon traversier optionnel laissent entrer encore davantage de lumière naturelle dans les chambres d'enfants. De l'extérieur aussi le pignon traversier est un véritable accroche-regard.
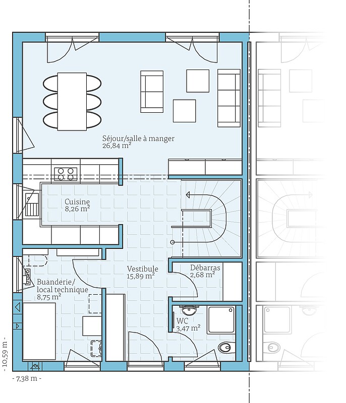
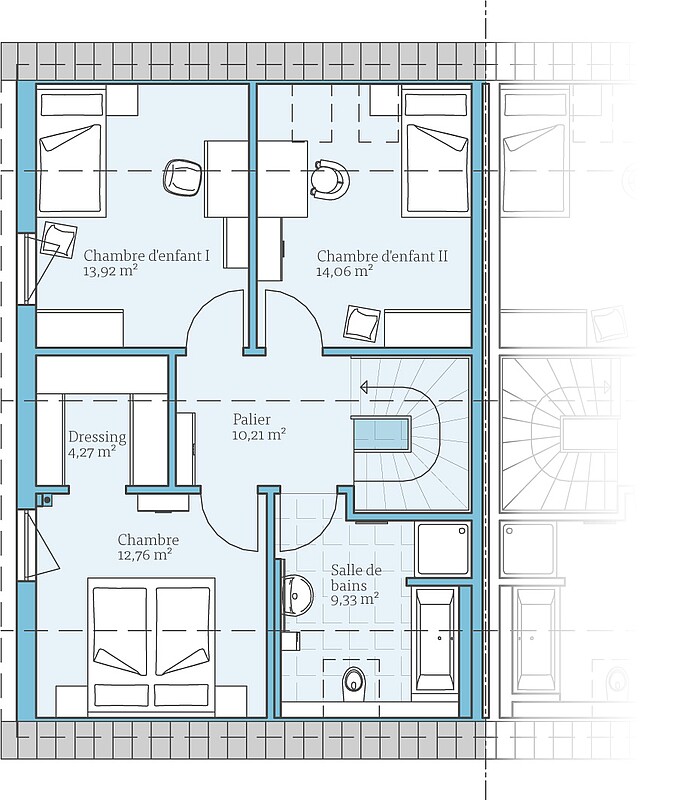
Exemples de
plans d'étage
Faites-vous une idée de cette maison à travers les plans d'étage. Nous vous montrerons nos suggestions de planification, qui peuvent bien sûr être modifiées individuellement sur demande.

Maisons de la même série








