Per un buon vicinato
Costruire una casa bifamiliare offre molti vantaggi. Soprattutto nelle aree residenziali con alti prezzi dei terreni, la minore necessità di spazio di una casa bifamiliare ha un effetto molto positivo. Oppure potete progettare la vostra bifamiliare come una casa multi generazionale, in modo che i vostri genitori possano rimanere con la famiglia anche in età avanzata. Qualunque sia il modo in cui progettate la vostra casa bifamiliare, avete comunque un vantaggio: potete scegliere voi stessi chi saranno i vostri diretti vicini di casa. Entrambe i proprietari della casa possono anche realizzare le proprie idee quando si tratta del design della casa. Invece di uno schema di colori uniforme per entrambe le metà della casa, hanno anche un effetto molto armonioso combinazioni di colori come quella mostrata per la casa Doppelhaus (bifamiliare) 35-130 .
| Caratteristiche | |
|---|---|
| Forma tetto | Tetto a due falde |
| Inclinazione del tetto | 35° |
| Altezza di gronda | 120 cm |
| Superficie abitativa per unità | 114,85 m² |
| Superficie per unità | 130,44 m² |
| Numero piani | 1,5 |
Opzione di
pianificazione
- Le grandi finestre del timpano nano opzionale permettono ancora più luce del giorno nelle camere dei bambini. Inoltre, il timpano nano è anche un vero colpo d'occhio visto all'esterno.
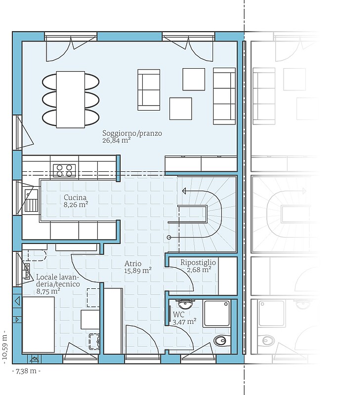
Esempi di
planimetrie
Fatevi un'idea di questa casa con gli esempi di planimetrie. Vi mostriamo le nostre proposte di progettazione, che naturalmente possono essere modificate individualmente su richiesta.

Case della stessa serie








