Petit terrain, maison spacieuse
Un autre étage ou un sous-sol offrent la possibilité de tirer le meilleur parti du terrain et de créer de l'espace.
Dans cette variante de conception, la pente du toit a été augmentée et un pignon transversal a été ajouté au côté jardin. Cela crée un étage supplémentaire avec des espaces de vie et des possibilités d'utilisation polyvalentes. Le pignon transversal assure la liberté de la tête et ses grandes surfaces de fenêtres apportent beaucoup de lumière pour une autre chambre d'enfants, une chambre d'amis et de travail ou une salle de sport et de loisirs, ainsi qu'un espace de rangement supplémentaire sous les pentes du toit.
| Caractéristiques | |
|---|---|
| Type de toit | Toit en bâtière |
| Pente du toit | 40° |
| Échine | 50 |
| Surface habitable | 153,15 m² |
| Surface au sol | 171,73 m² |
| Nombre d'étages | 2,5 |
Particularités
& extras
Option de plans
Pour la maison mitoyenne 118, il existe encore trois variantes de conception.
Exemples de
plans d'étage
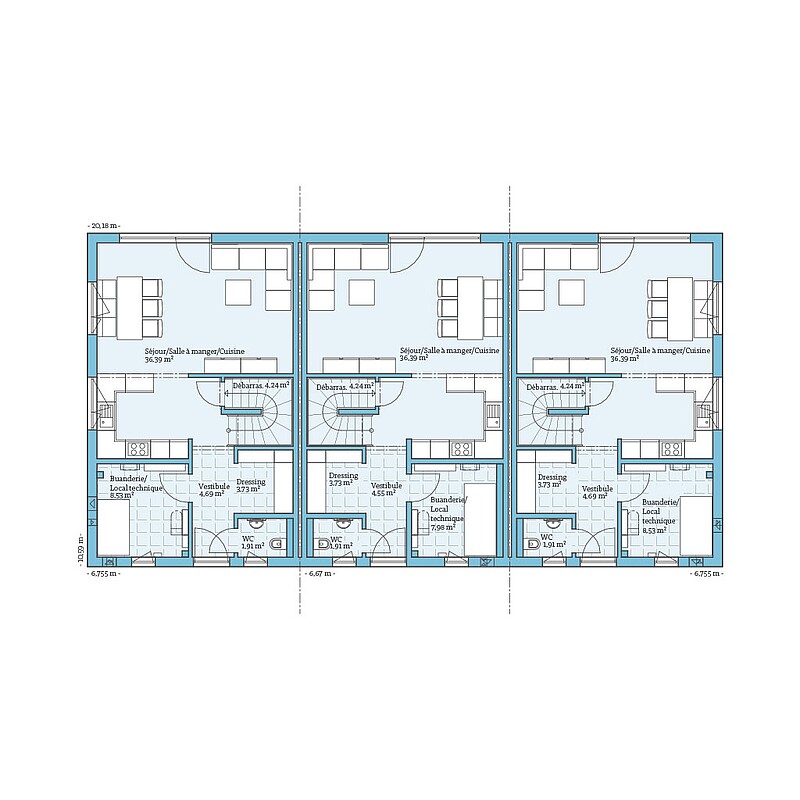
Faites-vous une idée de cette maison à travers les plans d'étage. Nous vous montrerons nos suggestions de planification, qui peuvent bien sûr être modifiées individuellement sur demande.

Maisons de la même série








