Une maison, de nombreuses possibilités
Créer beaucoup de logements sur le moins de terrain possible – une maison mitoyenne est la solution optimale pour cela. Nous montrons notre projet de proposition avec trois maisons. Mais il est également possible de construire quatre maisons ou plus.
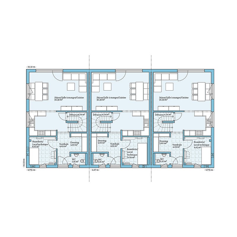
Le rez-de-chaussée est ouvert et équipé, côté jardin, d'un grand vitrage profond. Ainsi, une maison étroite semble généreuse et lumineuse – même la maison au centre, où l'exposition au-dessus des pignons est supprimée. Dans la zone d'entrée, grâce à la grande armoire juste après les toilettes invités, un sentiment d'espace particulièrement ouvert est créé. Ici et dans le débarras sous l'escalier, il y a suffisamment d'espace de rangement.
À l'étage supérieur, le couloir est effectivement conçu en faveur des chambres. Dans une niche dans la salle de bain familiale est place pour la machine à laver. Comme ça, le linge reste là où il tombe. Dans notre variante de conception 1 il y a un plancher surélevé disponible au-dessus de l'étage supérieur, qui offre un espace de rangement supplémentaire.
| Caractéristiques | |
|---|---|
| Type de toit | Toit en bâtière |
| Pente du toit | 25° |
| Surface habitable | 110,89 m² |
| Surface au sol | 117,60 m² |
| Nombre d'étages | 2 |
Particularités
& extras
Option de plans
Pour cette maison, il y a trois autres variantes de planification.
Exemples de
plans d'étage
Faites-vous une idée de cette maison à travers les plans d'étage. Nous vous montrerons nos suggestions de planification, qui peuvent bien sûr être modifiées individuellement sur demande.

Maisons de la même série







