Una casa, tante possibilità
Creare un sacco di spazio abitativo sul minor terreno edificabile possibile – una casa a schiera è la soluzione ottimale. Il nostro progetto di proposta è presentato con tre case. Ma anche quattro o più case possono essere costruite l'una accanto all'altra.
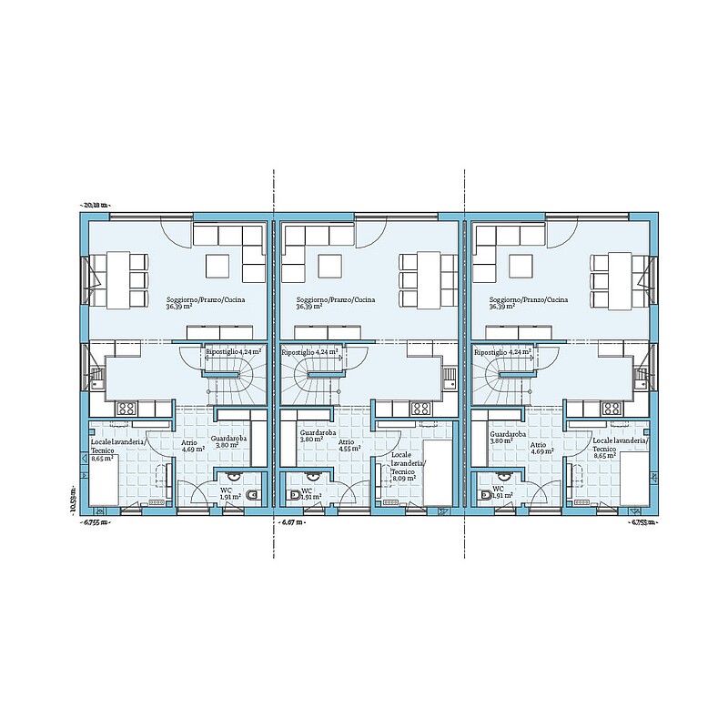
Il piano terra è aperto e dotato di una grande vetrata a pavimento verso il giardino. In questo modo, una casa stretta appare generosa e luminosa – anche la casa al centro, dove l'esposizione sulle superfici delle frontoni non è più visibile. Nella zona d'ingresso, l'ampio armadio accanto al bagno degli ospiti crea uno spazio particolarmente aperto. Qui e nel ripostiglio sotto le scale c'è abbastanza spazio di archiviazione.
Al piano superiore il corridoio è effettivamente pianificato a favore delle camere. In una nicchia nel bagno di famiglia c'è spazio per la lavatrice. In questo modo il bucato rimane esattamente dove cade. Nella nostra variante di progettazione 1 con tetto a due falde è disponibile un piano rialzato sopra il piano superiore che offre ulteriore spazio di archiviazione.
| Caratteristiche | |
|---|---|
| Forma tetto | Tetto a due falde |
| Inclinazione del tetto | 25° |
| Superficie abitativa | 110,89 m² |
| Superficie | 117,60 m² |
| Numero piani | 2 |
Particolarità
della casa
Opzione di pianificazione
Per la casa a schiera 118 ci sono altre tre varianti di progettazione.
Esempi di
planimetrie
Fatevi un'idea di questa casa con gli esempi di planimetrie. Vi mostriamo le nostre proposte di progettazione, che naturalmente possono essere modificate individualmente su richiesta.

Case della stessa serie







