Ein Haus, viele Möglichkeiten
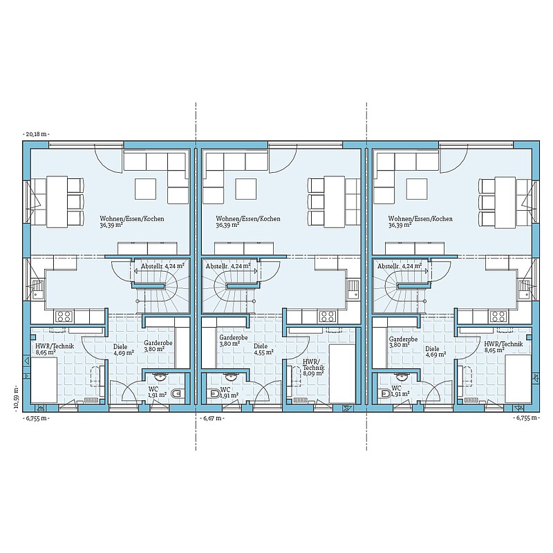
Viel Wohnraum auf möglichst wenig Baugrund schaffen – ein Reihenhaus ist dafür eine optimale Lösung. Unseren Vorschlagsentwurf Reihenhaus 118 zeigen wir als sogenannten Dreispänner. Aber auch vier oder mehr Häuser können aneinandergereiht werden. Der Erdgeschossgrundriss ist offen gestaltet und zur Gartenseite hin mit einer grossen, bodentiefen Verglasung ausgestattet. So wirkt ein schmales Haus grosszügig und hell – auch das Mittelhaus, bei dem die Belichtung über die Giebelflächen entfällt.
Im Eingangsbereich entsteht durch die grosse Garderobe gleich nach dem Gäste-WC ein besonders offenes Raumgefühl. Hier und im Abstellraum unter der Treppe ist ausreichend Stauraum vorhanden. Im Obergeschoss ist der Flur zugunsten der Zimmer effektiv geplant. In einer Nische im Familienbad ist Platz für die Waschmaschine. So bleibt die Wäsche gleich dort, wo sie anfällt. Bei unserer Planungsvariante 1 mit Satteldach steht über dem Obergeschoss ein Spitzboden zur Verfügung, der zusätzlichen Stauraum bietet.
| Merkmale | |
|---|---|
| Dachform | Satteldach |
| Dachneigung | 25° |
| Wohnfläche | 106,03 m² |
| Grundfläche | 119,57 m² |
| Anzahl Geschosse | 2 |
Besonderes
& Extras
Weitere Planungsoptionen
Für das Reihenhaus 118 gibt es auch eine Planungsvariante 2, eine Planungsvariante 3 und eine Planungsvariante 4.
Anbaumöglichkeiten:
- Haustürvordach
Beispiel
Grundrisse
Bekommen Sie durch die Grundrisse einen Eindruck von diesem Haus. Wir zeigen Ihnen unsere Planungs-Vorschläge, die natürlich auf Wunsch individuell umgeplant werden können.








