Architecture à toit en bâtière avec beaucoup d'espace pour vivre
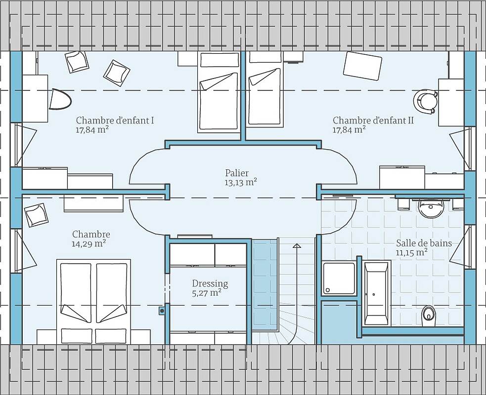
Ses plus de 175 m² et la modularité de son plan de niveau apportent au modèle Variant 45-175 un véritable atout. Avec un pignon traversier en option, il y a de la place pour trois grandes chambres d'enfants rien qu'au dernier étage. Si le bureau du rez-de-chaussée est également réaménagé en chambre pour enfants ou pour parents, l'habitat peut en un rien de temps être transformé en une maison pour une grande famille de six personnes. De nombreux espaces de rangement, un dressing séparé, de vastes espaces pour se mouvoir et se déplacer, ainsi que la deuxième douche optionnelle incluse au niveau WC du rez-de-chaussée offrent les meilleures conditions qui soient pour faciliter le quotidien et le rendre plus pratique.
| Caractéristiques | |
|---|---|
| Type de toit | Toit en bâtière |
| Pente du toit | 45° |
| Échine | 50 cm |
| Surface habitable | 156,69 m² |
| Surface au sol | 174,09 m² |
| Nombre d'étages | 1,5 |
Particularités
& extras
Vivre cette maison en direct:
Ludwig-Erhard-Straße 27
61118 Bad Vilbel
Téléphone 06101-34775-06 ou 06101-34775-07
Option de plans:
Ce modèle de plan peut être agrandi avec un pignon traversier pour ainsi créer ainsi une troisième chambre d'enfants.
Exemples de
plans d'étage
Faites-vous une idée de cette maison à travers les plans d'étage. Nous vous montrerons nos suggestions de planification, qui peuvent bien sûr être modifiées individuellement sur demande.

Maisons de la même série










