Architettura del tetto a 2 falde – molto spazio per vivere
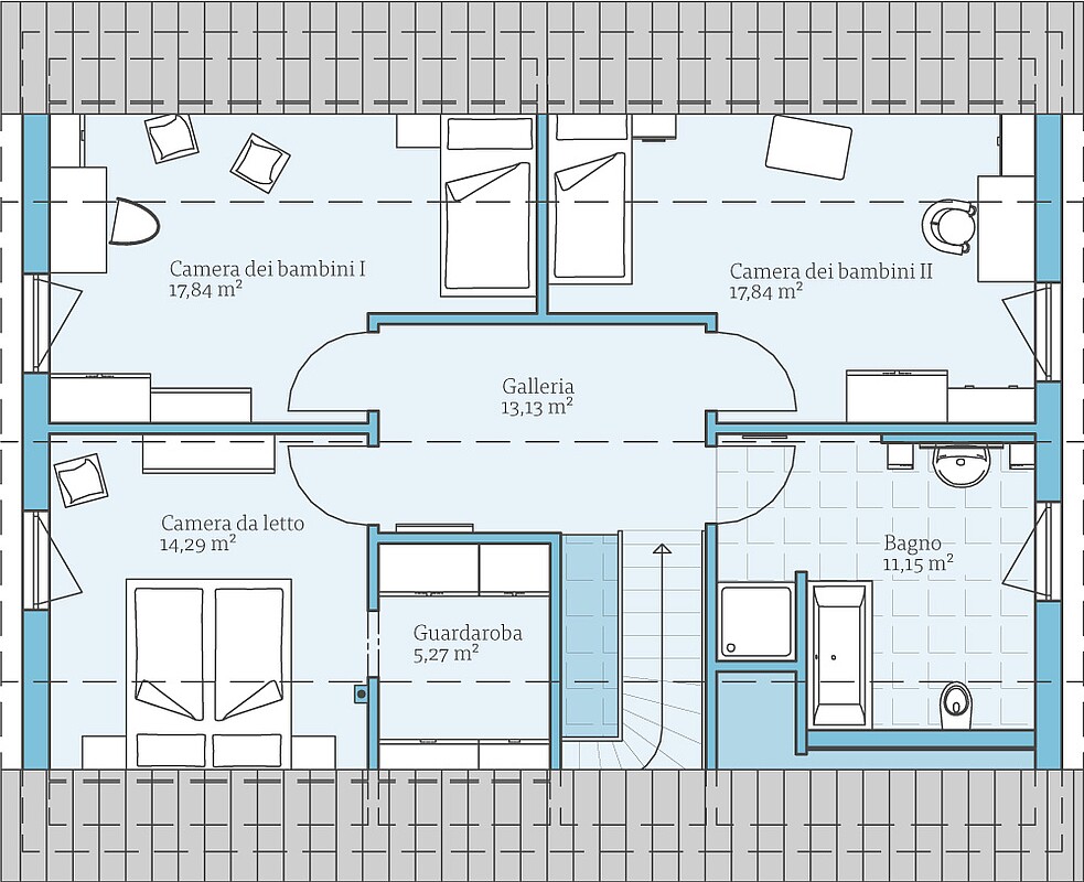
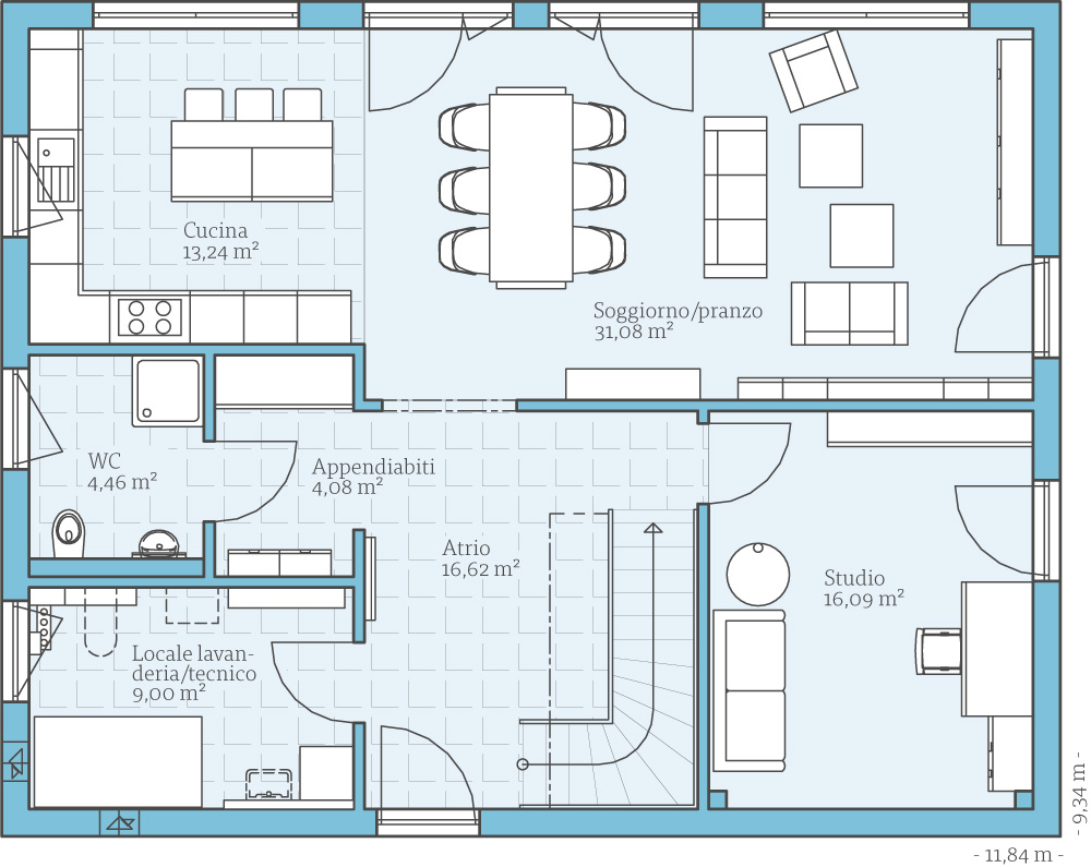
I suoi oltre 175 m² e la planimetria estremamente variabile rendono la Variant 45-175 un vero talento a tutto tondo. Con un timpano opzionale, nella sola mansarda, c'è spazio per tre grandi camere per bambini. Se si converte anche lo studio/ufficio al piano terra, si ricava una camera da letto per i bambini o per i genitori, così la casa diventa in poco tempo una casa per la famiglia numerosa di sei persone. Un ampio spazio di stoccaggio, uno spogliatoio separato, grandi spazi di movimento e una seconda doccia opzionale nel bagno al piano terra, forniscono le migliori condizioni per una migliore e rilassante vita quotidiana.
| Caratteristiche | |
|---|---|
| Forma tetto | Tetto a due falde |
| Inclinazione del tetto | 45° |
| Altezza di gronda | 50 cm |
| Superficie abitativa | 156,69 m² |
| Superficie | 174,09 m² |
| Numero piani | 1,5 |
Peculiarità
della casa
Scopri questa casa dal vivo:
Ludwig-Erhard-Straße 27
61118 Bad Vilbel
Tel.: 06101-34775-06 o 06101-34775-07
Opzione di pianificazione:
- Un timpano può essere aggiunto al progetto per creare spazio per una terza camera per i bambini.
Esempi di
planimetrie
Fatevi un'idea di questa casa con gli esempi di planimetrie. Vi mostriamo le nostre proposte di progettazione, che naturalmente possono essere modificate individualmente su richiesta.

Case della stessa serie










