Una casa grande su piccoli terreni
Non ci vuole sempre un grande appezzamento di terreno per realizzare le proprie idee abitative. Con un progetto di casa come la Variant 45-130, anche gli spazi più piccoli tra gli edifici o i lotti di costruzione condivisi possono essere utilizzati in modo ottimale. Grazie al progetto della planimetria, il piano terra in particolare appare notevolmente più grande, nonostante le dimensioni compatte. Inoltre, non si deve fare a meno di un pratico ripostiglio e di una toilette separata per gli ospiti. La casa è progettata da noi in modo tale che possa essere costruita in modo economico su di una soletta.
| Caratteristiche | |
|---|---|
| Forma tetto | Tetto a due falde |
| Inclinazione del tetto | 45° |
| Altezza di gronda | 50 cm |
| Superficie abitativa | 114,18 m² |
| Superficie | 129,61 m² |
| Numero piani | 1,5 |
Opzione di
pianificazione
- Se si opta anche per una cantina, lo spazio destinato al locale tecnico può essere utilizzato come ufficio o camera degli ospiti. Nel seminterrato c'è spazio sufficiente per impianti di riscaldamento, locale per hobby, magazzino o officina.
- Un timpano opzionale con le sue grandi finestre lascia entrare molta luce nelle camere dei bambini e crea ulteriore spazio. Anche qui, si può scegliere tra un timpano con un classico tetto a 2 falde o con tetto piatto.
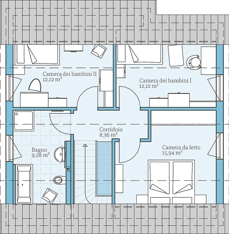
Esempi di
planimetrie
Fatevi un'idea di questa casa con gli esempi di planimetrie. Vi mostriamo le nostre proposte di progettazione, che naturalmente possono essere modificate individualmente su richiesta.

Case della stessa serie








