Un talento versatile moderno
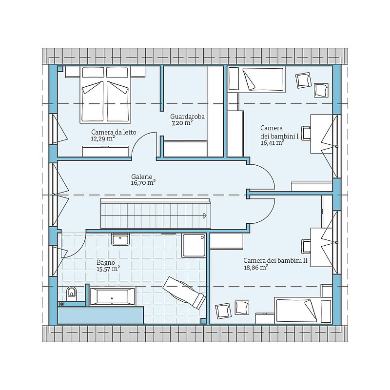
Ampi locali, tanta luce, circa 160 metri quadrati di superficie abitabile - nel Variant 35-176 c’è spazio per sentirsi davvero bene.
Il pianoterra è caratterizzato soprattutto dall’area living, pranzo e cucina. Il bovindo opzionale con ampie finestre crea spazio per una zona pranzo particolarmente luminosa e accogliente.
Particolarmente pratico: In un locale aggiuntivo che si collega direttamente alla cucina aperta, è progettata una combinazione di dispensa e lavanderia. In questo modo si possono ridurre le distanze da percorrere in casa.
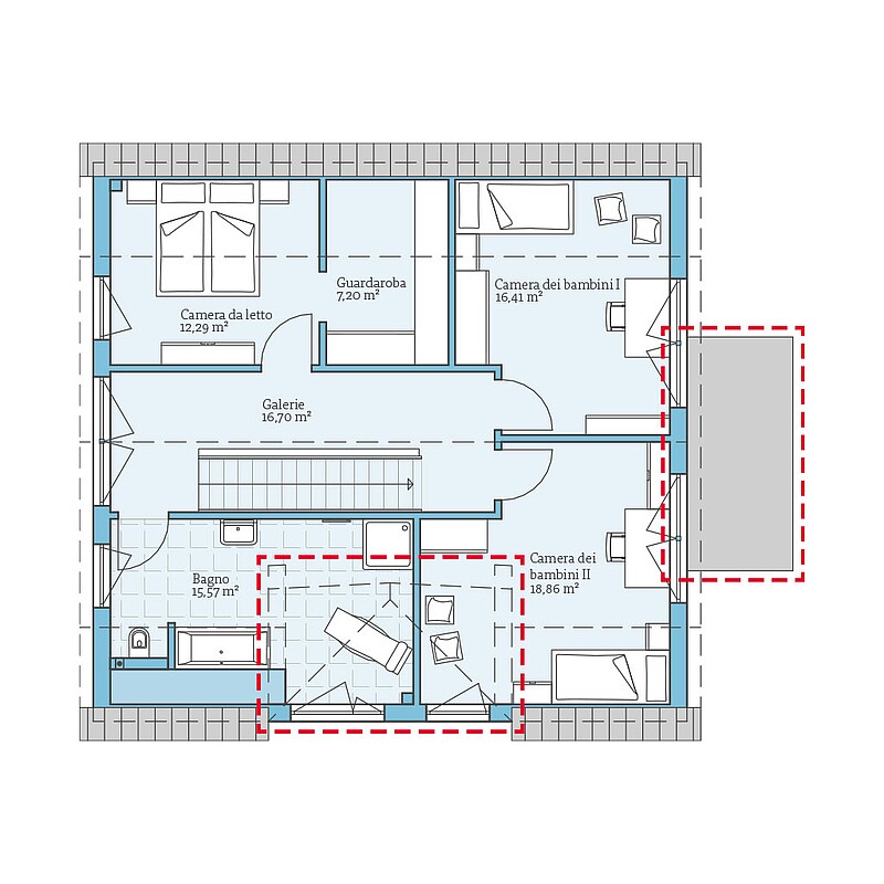
Anche l’opzionale abbaino a parete rende questo progetto di casa un talento versatile pianificabile con flessibilità: L’ampio bagno padronale nel sottotetto e una delle due spaziose camere per bambini vengono ampliate non solo di 1,5 metri quadrati, ma hanno anche una porzione extra di luce naturale.
| Caratteristiche | |
|---|---|
| Forma tetto | Tetto a due falde |
| Inclinazione del tetto | 35° |
| Altezza di gronda | 120 cm |
| Superficie abitativa | 159,40 m² |
| Superficie | 183,20 m² |
| Numero piani | 1,5 |
Particolarità
della casa
Vivi questa casa dal vivo:
Otto-Hahn-Straße 12
97230 Estenfeld
Telefono: 09305 1718
Opzione di pianificazione:
- Bovindo
- Abbaino a parete
Esempi di
planimetrie
Fatevi un'idea di questa casa con gli esempi di planimetrie. Vi mostriamo le nostre proposte di progettazione, che naturalmente possono essere modificate individualmente su richiesta

Case della stessa serie



















