Un talent moderne et polyvalent
Avec ses espaces généreux, sa lumière naturelle abondante et ses quelque 160 mètres carrés de surface habitable totale, la Variant 35-176 est un lieu où l'on se sent tout simplement bien.
La caractéristique principale du rez-de-chaussée est l'espace ouvert du salon, de la salle à manger et de la cuisine. L'encorbellement optionnel avec de grandes baies vitrées y crée de l'espace pour un coin repas particulièrement lumineux et confortable. Très pratique: un espace supplémentaire, directement adjacent à la cuisine ouverte, abrite une combinaison de garde-manger et de buanderie. Ainsi, les trajets quotidiens dans la maison sont réduits.
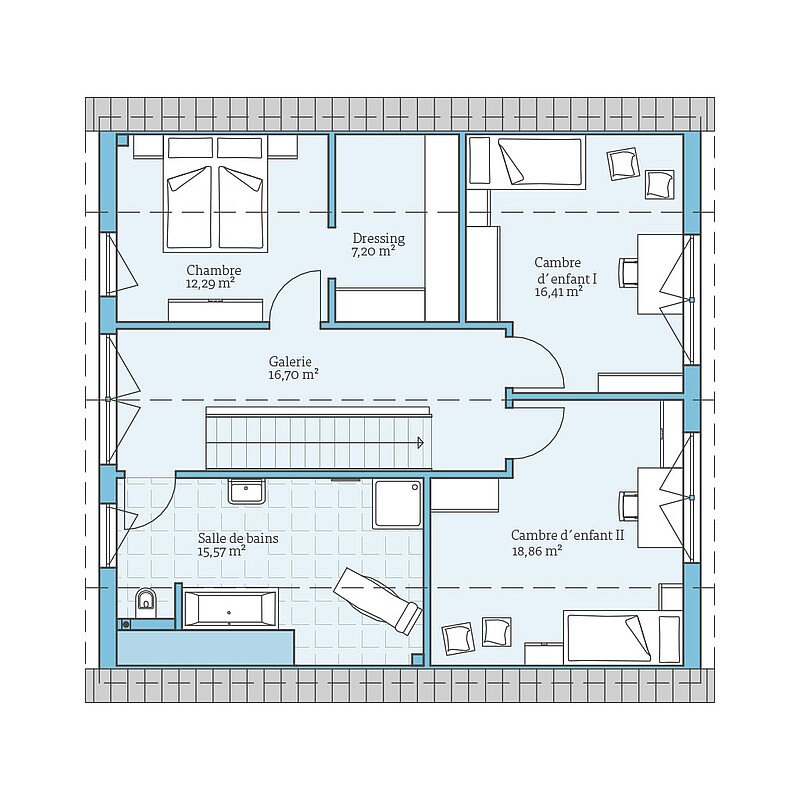
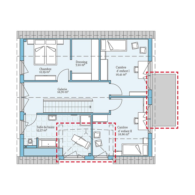
La grande salle de bains familiale dans les combles et l'une des deux chambres d'enfants spacieuses sont non seulement agrandies de 1,5 mètre carré, mais bénéficient en plus au maximum de la lumière du jour.
| Caractéristiques | |
|---|---|
| Type de toit | Toit en bâtière |
| Pente du toit | 35° |
| Échine | 120 cm |
| Surface habitable | 159,40 m² |
| Surface au sol | 183,20 m² |
| Nombre d'étages | 1,5 |
Particularités
& extras
Vivre cette maison en direct:
Otto-Hahn-Straße 12
97230 Estenfeld
Telefon 09305 1718
Exemples de
plans d'étage
Faites-vous une idée de cette maison à travers les plans d'étage. Nous vous montrerons nos suggestions de planification, qui peuvent bien sûr être modifiées individuellement sur demande.

Maisons de la même série



















