Grundrisse Stadtvilla entdecken
Stadtvilla
Wer das Projekt Hausbau in Angriff nimmt, steht vor der grossen Frage: "Wie soll mein Grundriss überhaupt aussehen?" Um Ihnen hier Hilfestellung geben zu können, haben wir eine Vielzahl an Hausentwürfen für Sie geplant, an denen Sie sich orientieren können. Ihr Haus planen wir dann natürlich individuell nach Ihren Wünschen und Vorstellungen. Und wir können Ihnen schon jetzt versprechen: Ihr Haus wird ein Unikat!
Die Grundrisse unserer Villen-Entwürfe sind der Gesamtgrösse nach aufsteigend sortiert.
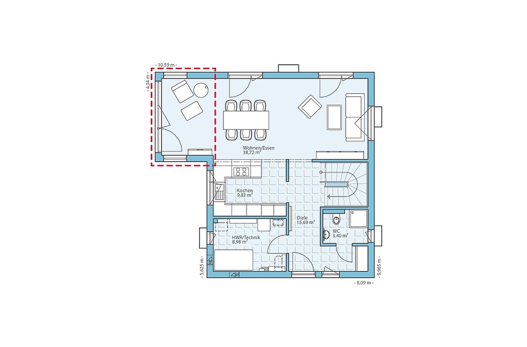
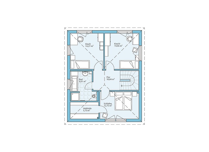
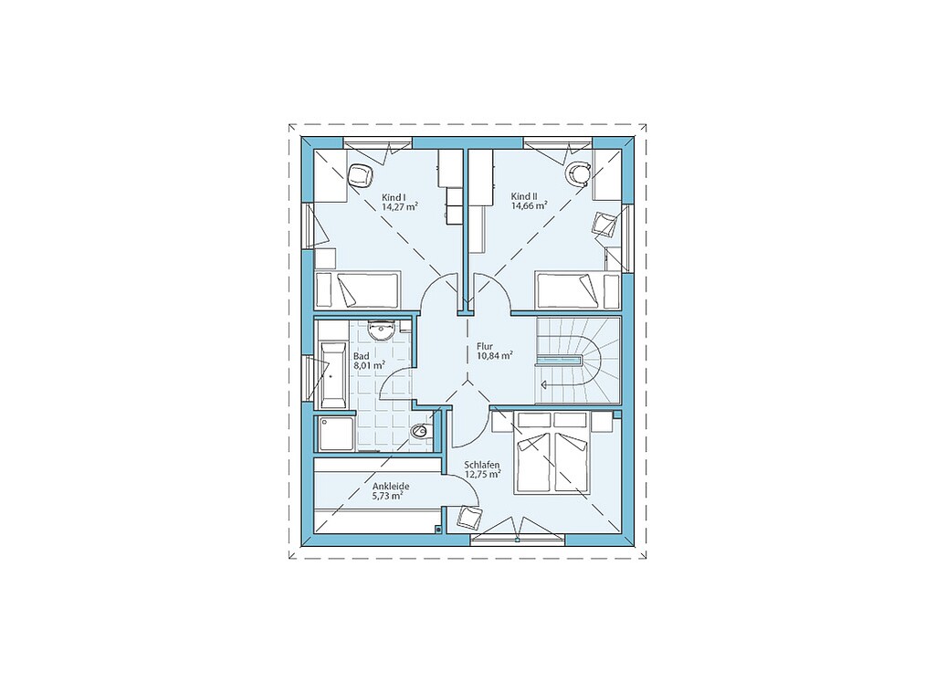
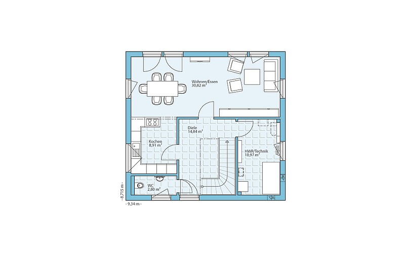
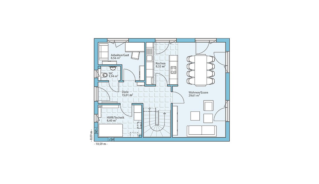
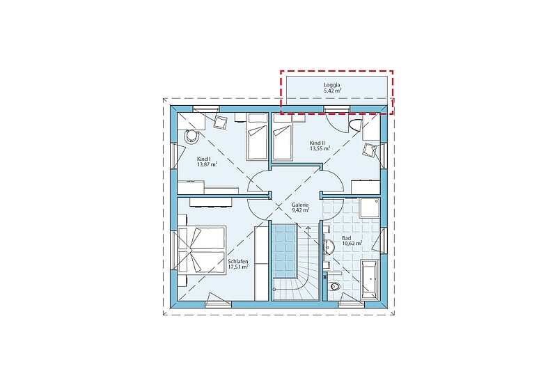
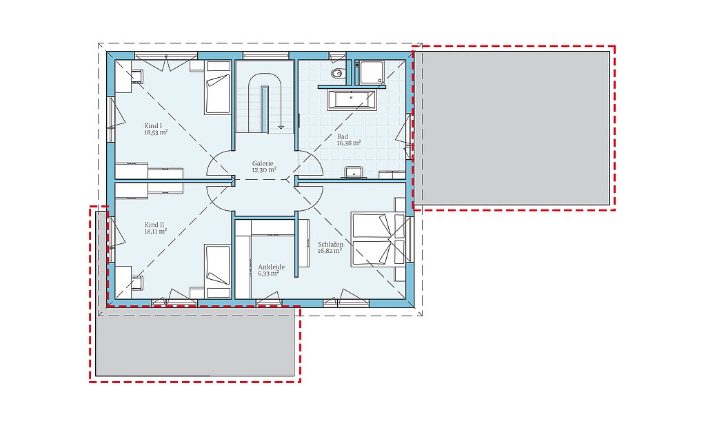
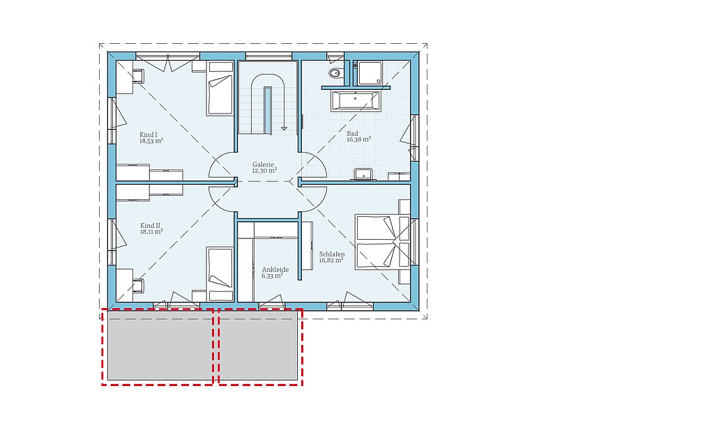
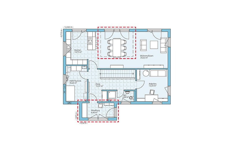
Grundrisse Villa 177
von Stadtvilla Grundrissen
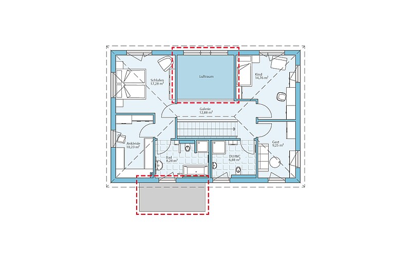
Generell unterscheidet sich die Nutzung einer Stadtvilla nicht im Besonderen von der eines anderen Einfamilienhauses. Allgemeine Regeln wie unsere 11 Tipps für einen perfekten Grundriss gelten auch für diesen Haustyp. Jedoch ist die Bauform an die römischen Villen der Antike angelehnt, mit der meist grosse imposante Herrenhäuser beschrieben wurden. Bei Hanse Haus hat der Haustyp Villa entweder ein Walmdach oder ein Zeltdach mit 25° bzw. 23,5° Dachneigung und zwei Vollgeschosse.
Welche Typen Villa gibt es?
- Moderne Stadtvilla im Bauhausstil: Gradliniger Bau mit schlichten Farben, meist grauem Dach und wenig Farbe an den Wänden.
- Toskanische Villa: Typisch hierbei sind eine Fassadengestaltung in Erdtönen und ein Dach aus Tonziegeln, wodurch dieser Typ der ursprünglichen römischen Villa sehr nahe kommt.
Was macht das äuSSre Erscheinungsbild einer modernen Stadtvilla aus?
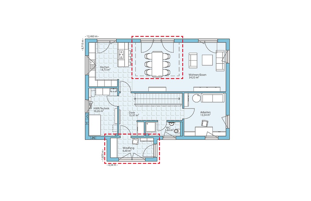
- Aufgrund der Dachform werden Stadtvillen heute meist kompakt bzw. nahezu quadratisch konzipiert.
- Wem die "Würfelform" zu schlicht ist, der plant am besten einen eingeschossigen Erker oder einen Anbau, um die Gradlinigkeit zu unterbrechen. Auch ein mit dem Haus verbundener Carport oder eine Garage können das äussere Erscheinungsbild entscheidend beeinflussen.
- Durch die quadratische Form, dem hohen Kniestock und der somit geringeren Aussenmaße ist es möglich, Villen auch auf kleinere und mittelgrosse Grundstücke zu bauen.
Was bedeuten zwei Vollgeschosse für die Planung?
- Aufgrund der zwei Vollgeschosse können Sie auch im Obergeschoss den kompletten Raum sinnvoll nutzen und verlieren durch Dachschrägen keinen wertvollen Raum. Die Zimmer können daher problemlos kleiner geplant werden.
- Mit zwei Vollgeschossen können Sie auch im Obergeschoss überall bodentiefe Fenster einplanen.
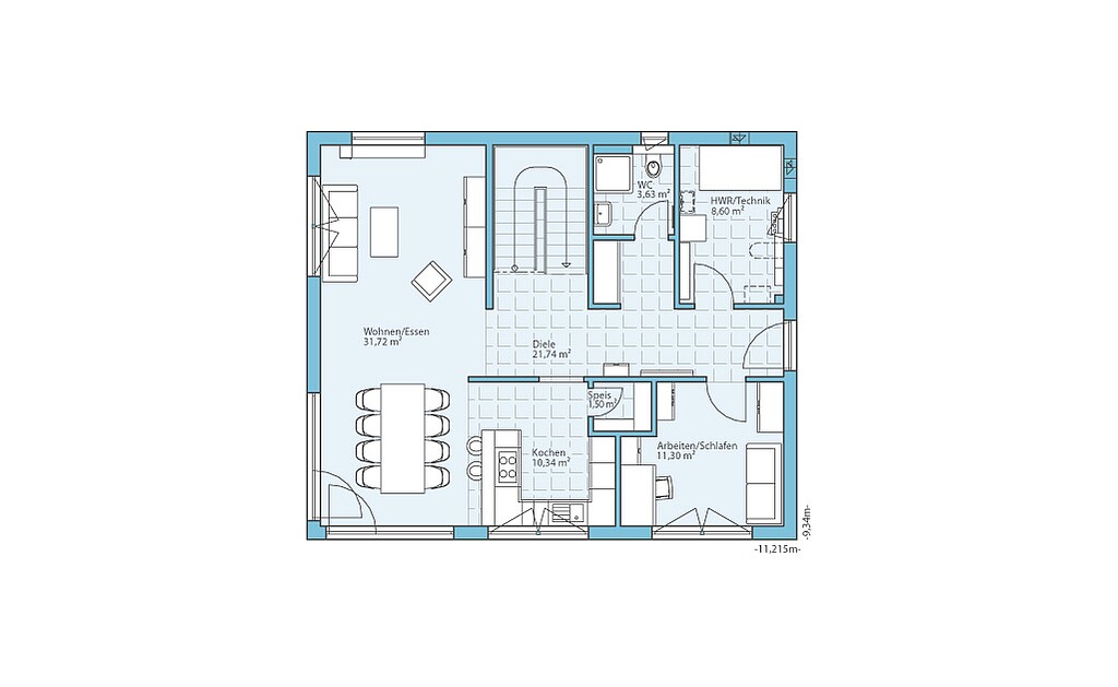
Was kostet eine Stadtvilla mit 178m² Grundriss schlüsselfertig?
- Die Kosten für schlüsselfertige Häuser sind in der Regel nicht pauschal anzugeben und von der Qualität der Ausstattung abhängig.
- In unserer Aktionsbroschüre haben wir den Preis einer 178m² Stadtvilla in der Ausbaustufe "Fast Fertig" aufgeführt.
- Um den Preis für eine schlüsselfertige Villa zu erhalten, müssen aufgrund des hohen Standards der Ausbaustufe "Fast Fertig" lediglich noch die Kosten für Bodenbeläge, Innentüren und Maler-, Spachtel- und Tapezierarbeiten hinzugerechnet werden.
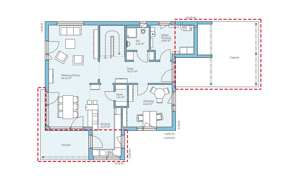
Was kostet eine Stadtvilla mit 183m² Grundriss Inkl. Einliegerwohnung schlüsselfertig?
- Die Kosten für schlüsselfertige Häuser sind in der Regel nicht pauschal anzugeben und von der Qualität der Ausstattung abhängig.
- In unserer Aktionsbroschüre haben wir den Preis einer 183m² grossen Villa mit Einliegerwohnung in der Ausbaustufe "Fast Fertig" aufgeführt.
- Die zusätzlichen Kosten für eine schlüsselfertige Villa umfassen, aufgrund des hohen Standards der Ausbaustufe "Fast Fertig", lediglich die Bodenbeläge, Innentüren und Maler-, Spachtel- und Tapezierarbeiten.
































