Il piacere di abitare tra spazio e luminosità
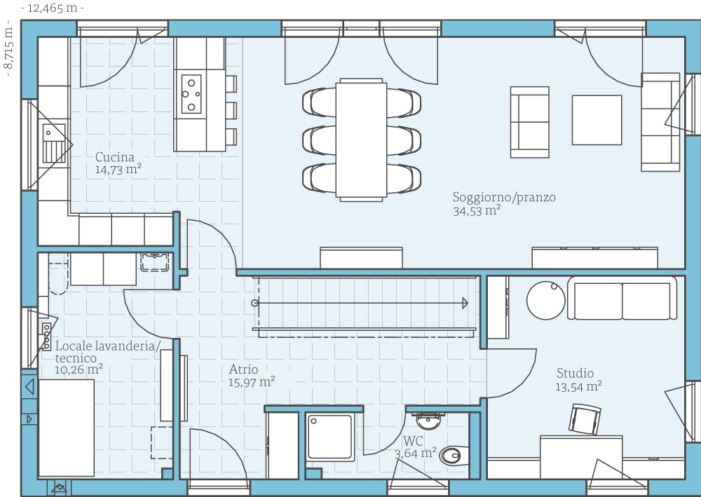
A prima vista, queste case sembrano essere due tipi di case completamente diverse. Ma ad un esame più attento diventa chiaro che entrambi i progetti hanno la stessa planimetria e si differenziano solo per la forma del tetto (a padiglione o piano). Con un totale di 178 m² di superficie abitabile, c'è molto spazio per ogni membro della famiglia. Le grandi vetrate offrono un soggiorno e una zona pranzo inondati di luce. Mentre,nel locale accanto, si può lavorare indisturbati nell'ufficio. Al piano superiore troviamo la zona con la camera da letto per i genitori – con bagno in camera e spogliatoio –, così come due camere per i bambini, una camera per gli ospiti e un bagno con doccia.
| Caratteristiche | |
|---|---|
| Forma tetto | Tetto a padiglione |
| Inclinazione del tetto | 25° |
| Superficie abitativa | 176,91 m² |
| Superficie | 182,73 m² |
| Numero piani | 2 |
Esempi di
planimetrie
Fatevi un'idea di questa casa con gli esempi di planimetrie. Vi mostriamo le nostre proposte di progettazione, che naturalmente possono essere modificate individualmente su richiesta.

Case della stessa serie







