Il est si bon d'habiter dans un logement spacieux et lumineux
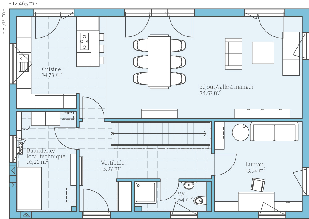
À première vue, il semblerait qu'il s'agisse de deux types de maisons complètement différents. Mais en y regardant de plus près, il apparaît clairement que les deux modèles ont le même plan de niveau et ne diffèrent que par la forme de leur toit (en croupe ou plat). Avec une surface habitable totale de 178 m², il y a beaucoup d'espace pour chaque membre de la famille. Les grandes façades de fenêtres offrent un espace de vie et de repas baigné de lumière. Juste à côté, le bureau permet de travailler en toute tranquillité. À l'étage se trouve l'espace des parents avec une chambre à coucher, une salle de bain attenante et un dressing, ainsi que deux chambres d'enfants, une chambre d'amis et une salle de douche.
| Caractéristiques | |
|---|---|
| Type de toit | Toit en croupe |
| Pente du toit | 25° |
| Surface habitable | 176,91 m² |
| Surface au sol | 182,73 m² |
| Nombre d'étages | 2 |
Exemples de
plans d'étage
Faites-vous une idée de cette maison à travers les plans d'étage. Nous vous montrerons nos suggestions de planification, qui peuvent bien sûr être modifiées individuellement sur demande.

Maisons de la même série







